- 找3d模型上欧模网
案例 2020年02月21日
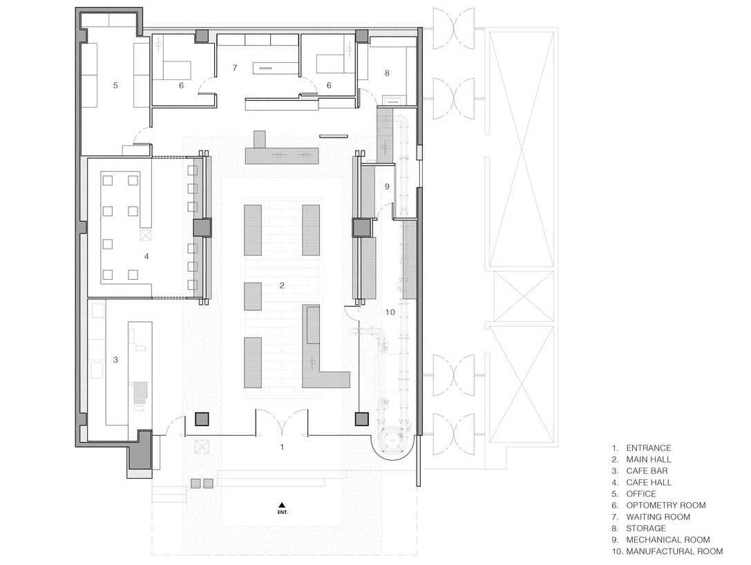
空间名称:YUN品牌眼镜店+咖啡店
空间类型:商业空间、零售空间、品牌旗舰店、品牌眼镜店
空间地址:韩国首尔市城东区 Seongsu 2(i)-ga 3(sam)-dong Achasan-ro66号
设计公司:LABOTORY
空间面积:271平方米
空间主材:实木、花岗岩、混凝土、镜面、钢化玻璃、白色乳胶漆
空间摄影:Yongjoon Choi
UN品牌是始于柏林的眼镜品牌,现已在韩国首尔开设其品牌旗舰店;YUN是一个兼具机械完美和模拟美学的平衡品牌,融合了东方和西方的不同感觉。我们希望完成独特的空间体验,以实现相互冲突的价值观并与韩国东部的最小敏感性并存。




设计师在太空中放置了“Dansaekhwa”和“白色瓷器”的细微差别,以表达YUN质地的极简主义。它使设计能够从不同的眼睛和循环中体验不同事物的相互作用和共存。作为Dansaekhwa的表达技术渗透到汉字并浸入多种颜色的一种简单而重复的语言,白光穿透了混凝土的质地并反射了空间中的光。天花板的形状是凸形的或凹形的,以便可以感受到各种空间感。












通过抬高地板,顾客看到了云朵般的白色天花板,并表示好像进入了韩屋院子并与天空接触。圆柱是支撑天花板的空间中的流动轴,用于区分内部的大型功能,例如咖啡馆和陈列室。即使是专用于每个功能的元素,它们仍然彼此平衡。通过最小的情感,YUN品牌的平衡感表达了您可以忠实交流的空间。在首尔,所有元素都有其独特的特征和适当的平衡,因此完成了温暖的空间体验。





平面图:


一叶知秋
文章:1310 问答:3