- 找3d模型上欧模网
案例 2019年09月07日
黑白灰极致纯色空间 | 吾设计事务所-欧模网
项目名称丨三只熊皮肤管理中心项目
项目地址丨浙江省丽水市,万地金街
设计面积丨280㎡
设计单位丨吾设计事务所
主案设计丨朱伟平
软装设计丨吾月
最初目的是创造一个闹市中清闲之地。以建筑建筑外立面为媒介来对空间的光线、温度、风进行传递和感受。处于热闹商圈的护肤中心,距离中心几步之遥。创作中选取了拥有视觉扩张的白色作为主色调,赋予了皮肤护理中心白净、简洁、舒适的要求,采用冷金属装饰和镜面效果体现了空间温度和空间的层次。


入口
设计的初衷是能让所想即是所见,所见即所得。

墙上镜面不锈钢的水波纹装饰就像蜻蜓点水后泛起的涟漪正如宋严羽在《沧浪诗话•诗辨》所说:“故其妙处,透彻玲珑,不可凑泊,如空中之音,相中之色,水中之月,镜中之象,言有尽而意无穷。”

无言的纯洁的天真,往往比说话更能打动人心。

简洁是智慧的灵魂,冗长是肤浅的藻饰。——莎士比亚
楼梯,镜面墙延展至顶部利用的虚幻的镜面空间拓展出了一个完整的视觉通道交错与叠复





“摆脱一切你不需要的设计语言会带来一种激动人心的东西——纯净。”
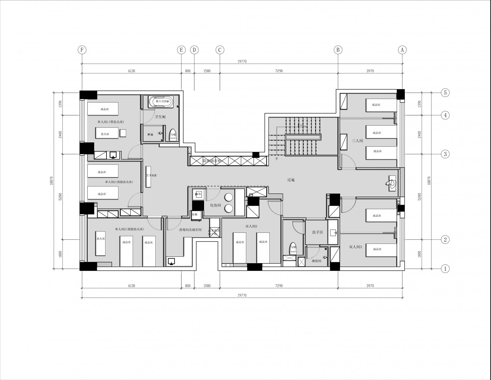
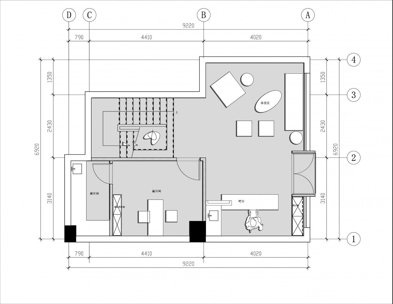
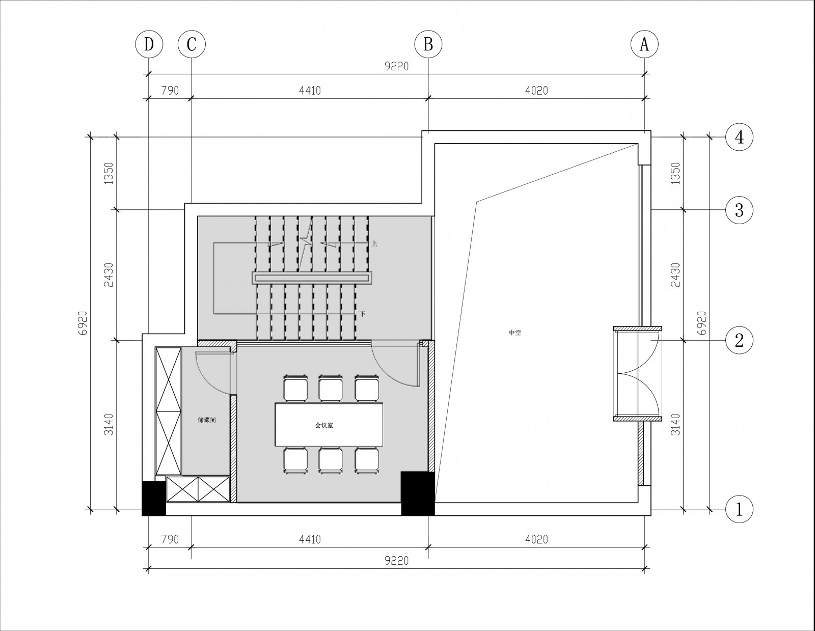
图纸呈现
一楼平面
二楼平面
三楼平面
欧模网,室内设计3d模型下载网站,海量设计素材!

一叶知秋
文章:1310 问答:3