- 找3d模型上欧模网
案例 2019年06月29日

所有的商业空间都秉承一个从有到无的过程
让其几乎脱离任何风格
只是成为合适的承载,装进产品
再使产品与空间共同构造出舒适的体验环境
墨瑟门窗(MOSER),在德国及中国门窗界一直是顶尖质量、独特技艺、高端材质和完美外观的代名词,是最具行业影响力的中国节能门窗领导品牌。
项目名称:墨瑟门窗西北旗舰店
项目设计师:朱睿昕
项目楼盘:大明宫钻石店
户型面积:270平方米

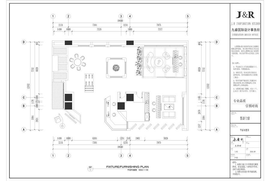
▲户型图

▲产品爆炸图展示区
▲前台
对于国际化门窗的品牌展示,设计师在视野上运用简洁的纯白色作为背景色,充分发挥门窗、门框的材质及颜色。在硬装设计上没有采用过度的装饰手法,采用了简洁明朗的风格。
▲产品小样展示区
作为世界知名门窗品牌,墨瑟产品的定位人群是中高端消费者。墨瑟始终主张为用户创造充满生活气息的居住环境,使其拥有美妙的居住感受。为做好墨瑟门窗西北旗舰店设计,设计总监朱睿昕老师早在去年的六月就赴高碑店墨瑟中国门窗总部进行调研,朱睿昕老师说:作为设计师,理解是最重要的原则。

▲产品外围展示区(左)

▲门窗展示中庭

▲产品小样展示区
门窗在居室中是一个静态的物质,但带给主人的是动态的感受。墨瑟的每一扇门窗都是一个杰出质量的印章。新型环保节能建筑材料在店面里展现给大众。纵观现如今人们对门窗品牌文化的理解,以及人们思考方式的转变,店面的在各个区域分布的店面规划都有着统一的调性,却又有所不同。

▲VIP洽谈区(左)

▲VIP洽谈区(右)
墨瑟门窗的店面设计明朗,大气,客户进入店面的第一时间里就能消除人们对相同风格的审美疲乏,为客户传达一切与产品息息相关的信息。门窗的玻璃作为最透明纯洁的介质,只需要白色作为映衬,穿过透明见证一切空间里的层次感。运用灵透的设计方式力求整体风格与品牌气质内外保持一致。

▲餐厅及门窗展示区
前台
店面的第一视觉是前台,引领顾客的重要地方。朱睿昕老师采用夸张的手法将前台格局放大,材质的运用上抛弃了传统的整体台面搭建,将有韵味有年代文化底蕴的窗子拆卸镶嵌在前台立面中部。使得客户在进入空间中感受原始窗户过渡到现代智能窗户的演变,充分展示门窗的文化历程,同时引领对未来的门窗更新的思考。

▲前台
前台的左边设置了门窗爆炸图,展现德系产品的精工制造,为了展现更好的产品细节,将产品爆炸图放置在入户的最前沿,在其中放置竖挂的智能触摸屏,客户在经过时可以更好的自主了解产品,为客户营造了自然缓和的气氛,使得客户可以无拘无束去了解门窗的介绍。
中庭
树,是大自然的语言,窗户是室内和大自然融合的介质。入户和室内串联,使得中庭部分在入户时的视觉感无限延伸。顺着前台的视野往里看去便可以看到中庭种植了绿树。

▲室内树
为了更好的传达门窗的展厅空间。树的上方安装了完整的智能体系,模拟紫外红外光、温控设备、湿度设备等。在包裹树的窗户上有着智能到位的体系。烟感、雨感、风感、雾霾等演示自然与智能的结合。树的上部安装了体验设备,用遥控操纵风箱便可以使得树周围有风,风欲静而树不止,可以随心感知窗户在有风和无风的智能变换,同时给客户最舒适深入的体验,感受门窗带给人们最安全贴心的保障。

对于国际化门窗的品牌的展示,朱睿昕老师认为,产品注入文化的内涵,让消费者在购买和使用中产生有别于其它消费的联想,进而上升到一种生活方式的体现,产品就有了不可被模仿的独特性。在感受到中庭处树和自然的完美结合之后,视野转向旁边墙内镶嵌着智能的门窗屏幕,智能与门窗先进的结合在一起,如同触屏显示器,感受屏幕与窗户的转换。

体验区
墨瑟门窗西北旗舰店是一个特别的空间,始终主张为门窗用户创造最适宜的人居环境,使其拥有美妙的居住感受。在这个有限的商业空间里拥有打动人心、让人产生共鸣的家居环境、全新形式的门窗生活体验馆,是对节能设计、绿色建设未来趋势或潮流的诠释,传达着一种健康的生活方式,展现未来的生活形态。

体验区是店面不可缺少的一个区域,通过体验店彰显墨瑟的产品定位和品牌形象,身临其境的智能体验带给客户更好的生活享受。更直观的体会节能与人居环境的关系,被动房与主动放的对生活的不同影响,从被动到主动,从能量平衡到能量产出的超低能耗建筑之美。


洽谈区
餐厅旁边安置了大型框架,所有主打门窗产品作为内镶,可以自由旋转,为客户全面展示门窗。温馨且独立的VIP洽谈室用木梭做了外框架,围合感更加贴切,使顾客更舒适且专注的去了解墨瑟门窗。作为签约区空间需要私密,在洽谈当中更能体验智能环境的令人安心的包围感。

▲休息等候区


“让建筑更节能,让生活更美好”,墨瑟西北旗舰店精致的装修,优雅的环境,打造舒适的生活空间,开启高品质休闲生活,满足并引领消费者对生活日益个性化、精细化的消费需求,致力于构建健康、节能、环保的人居和谐关系。也让大家感受以“绿色、智慧、生态、文化”为核心的未来城市建筑的美好。
从前期的考察到设计直至店面的落成,朱睿西老师也希望将高品质生活方式传递到西安的千家万户,共同为西安人民营造一个健康舒适、绿色环保、生活美学、个性定制的理想之家。

朱睿昕——空间设计师
文章:4 问答:0