东方古韵的优雅诠释——美利悦府售楼中心 | LWD 梵池设计-欧模网
项目名称:美利悦府售楼中心
项目区位:中国徐州
项目面积:1000㎡
项目风格:新东方
项目类型:商业
设计公司:LWD·梵池设计
主创设计师:卢毅
硬装设计师:张敏
软装设计师:陈迪
设计周期:2018年10月-2018年12月
竣工时间:2019年4月
主要材料:木作、石材、铜板、真丝面料、麻布硬包、耐候钢板
项目摄影:ingallery
上古穴居而野处
后世圣人易之以宫室
上栋下宇
以待风雨
——《易.系辞下》
徐州美利悦府售楼处坐落于两汉时期的战略要地中国邳州,邳州历史悠久,是华夏文明最早的起源地之一,也是两汉文化重要的组成部分。LWD·梵池设计将两汉文化与现代美学相融合,通过艺术设计诠释东方古典韵味与现代艺术形态。

在设计中,以汉代皇室建筑未央宫为主线,以此来奠定室内恢宏大气的格局。室内运用大量斗栱元素,斗栱立于白色大理石柱之上,既提升室内层次,又塑造两汉文化的大气磅礴之势。

企业文化展示区,设计师别出心裁地配以两汉特色艺术陈设,历史文化的厚重与企业文化的深刻巧妙结合,更显历史传承之意。

邳州银杏举世闻名,素有“世界银杏看中国,中国银杏看江苏,江苏银杏看邳州”之美誉。设计师提取邳州当地特色植物金色银杏为书吧主要装饰元素,金光闪闪的银杏树伫立于书吧中央,在明亮灯光的烘托下,光影婆娑,仿若千万只金色蝴蝶翩然起舞,令室内蓬荜生辉美轮美奂。

水吧与书吧遥相呼应,竹简与陶瓷茶罐依次摆放于壁橱之中,卷卷刻有汉史的竹简将汉时文化具象于点滴之中,意蕴悠长。陶瓷茶罐将茶与文化有机结合,不仅运用茶文化体现室内设计传达的物质文化与精神文化,更以茶文化为载体,传达出华夏千年文化的待客之道与传统礼仪。



设计师在整个空间中运用大量浮雕手法,呈现出邳州人自汉下邳时期“昂扬向上、坚韧挺拔、心无旁骛,精诚团结”的积极生活面貌。走廊尽头运用纹样精美的瓦当元素,在瓦当之上雕刻神鹿与祥云,神鹿跳跃于祥云之间,寓意吉祥如意。





VIP区设计师用和氏玉璧与汉式方鼎来体现其高贵的气质,配以未央宫的鸟瞰壁图,既增强室内立体感,又为室内设计主线画龙点睛。整个空间通透明亮,大至天圆地方,小至亭台楼榭,皆布列其中。




儿童活动区域,设计师在繁华古风中开辟一隅现代清新。“绵羊”在海洋中自由穿梭,海底矗立着都市中的摩天大厦,童趣与梦幻浪漫相随;那一抹清新和温情,曼妙而和谐,倏尔之间将空间点亮。
“挑兮达兮,在城阙兮”,精致来源于对艺术的不断探索挖掘,设计师将古风古韵与当地文化相结合灵活应用到设计当中,穿插大量艺术手法,表现建筑的舒展灵动之美,呈现出奢华而不失雅致的作品。
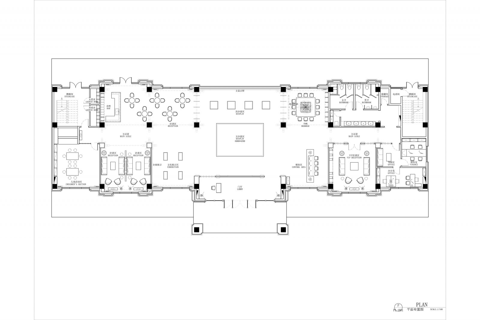
平面图
欧模网-拥有大量精品新中式3d模型下载等室内设计素材!
{{ detailData && detailData.praise || 0 }}
声明:
本文由发布人:【一叶知秋】进行上传及发布,原文章/作品著作权归原作者所有,仅供个人学习交流使用,不构成商业目的;如需商业用途,请联系原作者授权后使用,如涉嫌侵权被追究法律责任与欧模网无关!
本站网友评论及内容发布仅供其表达个人看法,并不表明欧模网的立场或观点。