- 找3d模型上欧模网
案例 2018年12月05日
435㎡ 北京 . ZOOMWAY摄影工作室 | 谜舍设计工作室_欧模设计圈
项目:ZOOMWAY Studio
业主:ZOOMWAY
项目地址:北京市朝阳区豆各庄黄厂路1号易心堂文创园40B幢
面积:435平方米
完工时间:2018年11月
设计公司:谜舍设计工作室
设计团队成员:田少寅,曾煜娴,郭益克,黄凯峰,
品牌及导视:JAN Creation减艺设计
施工团队:北京世纪恒创装饰工程有限公司
拍摄:广松美佐江,宋昱明(北京锐景摄影)
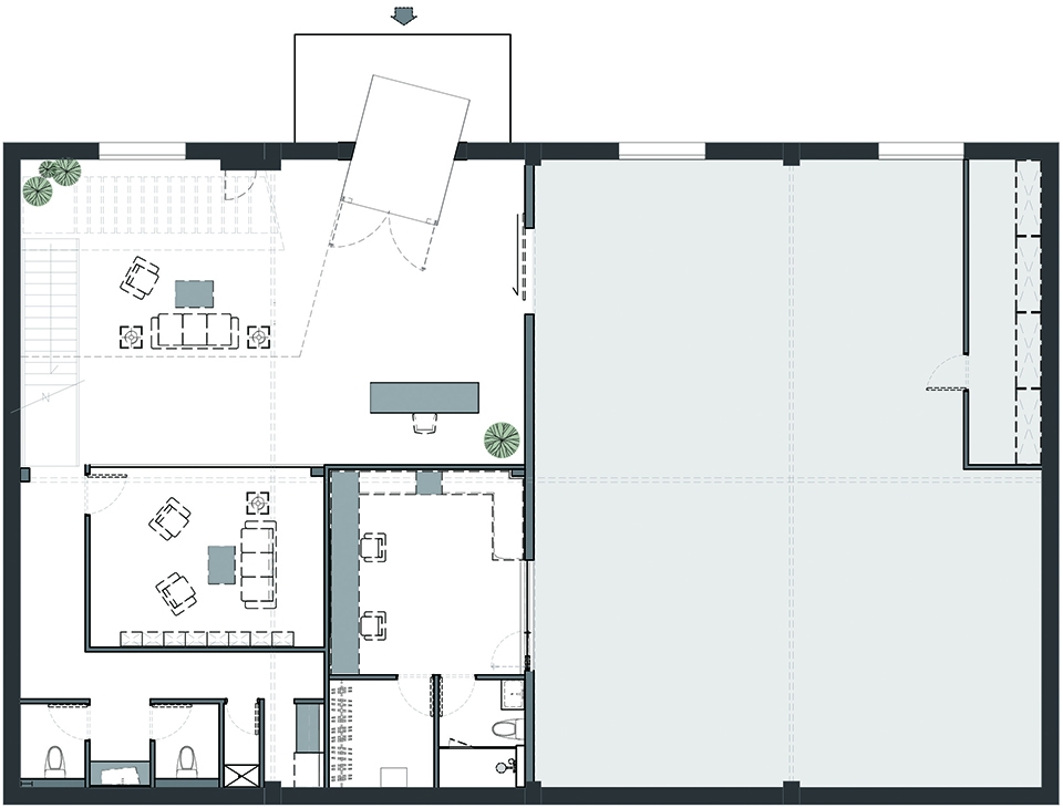
这是为摄影师周维先生设计的摄影工作室。项目基地是一个位于北京东五环的工业厂房。近7米的空间净高和连续的三角形屋架是这个工业建筑的典型特征,谜舍希望能在改造后的空间中仍能将这个场所本身所具有的空间属性或多或少的加以保留和利用,创造出具有独特体验的空间氛围。对于摄影艺术,谜舍的理解是通过镜头捕捉到被拍摄对象与环境之间的张力,或者是被拍摄对象的内在张力。对于空间,谜舍也希望通过体量对比、虚实结合等空间设计的语言去表现空间的张力和矛盾感。

谜舍刻意压低了原厂房的入口高度,并置入了一个旋转约15°的黑色钢盒作为入口,旋转的动作除了打破了入口的常规状态使之迎向人流主动线之外,更避免了通过入口过于直白的看到内部空间,营造出一定程度的暧昧性.钢盒底部暗藏的线性光源,使盒子视觉上更加轻盈,并起到引导客人的作用。

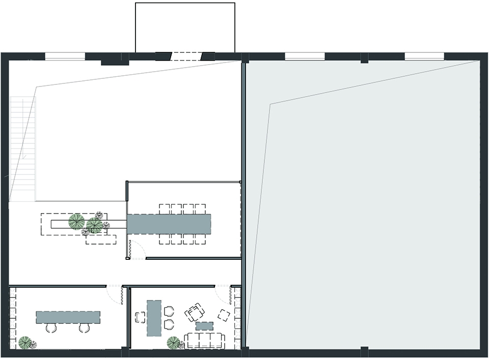
谜舍将摄影办公区一分为二,在空间的北侧搭建钢结构二层,功能性的房间集中的布置在这里。留出南侧的吹拔空间作为接待区和等候区。从较为封闭的盒子进入到完全开敞的吹拔中庭后,又进入到相对密集的功能区域,由空间体量的变化创造出了这样不同的空间节奏。
谜舍将吹拔空间定义为一个小型美术馆,以纯白色的环境为背景,前台、入口盒子、摄影棚大门、钢梯等一系列大体量的建筑构件的造型被处理的非常完整且具有雕塑感,很自然的成为了这个“小型美术馆”的“艺术展品”。在通往二层办公区的楼梯前端谜舍设置了具有户外质感的水泥地台,并使用铺在地上的白色砂石汀步连接楼梯,在室内创造出具有室外感受的区域,模糊室内外的空间界限。
黑白照片是周维先生镜头下最具感染力的作品类型,谜舍也将空间整体的主色调定为黑白两色,以简约写意的方式突出空间纯粹的艺术氛围。














更多欧模网_室内设计案例推荐
1. 惠州华廷悦府售楼处 | SCD(香港)郑树芬设计事务所_欧模设计圈
2. 天空之镜·宁波财富中心天际会所 | 中赫空间设计_欧模设计圈
3. 深圳UPAR运动品牌跑站旗舰店 | 朱志康空间规划_欧模设计圈
更多3d模型推荐: 3d模型下载 3d客厅模型 3d书房模型 3d餐厅模型 3d卫生间模型 3d别墅模型 3d衣帽间模型 3d酒吧模型

一叶知秋
文章:1310 问答:3