- 找3d模型上欧模网
案例 2018年10月20日
1330㎡ 河南 . 深圳臻品设计 | 法式浪漫与艺术情怀 · 洪河富贵销售中心_欧模网设计圈
项目名称:腾飞·洪河富贵销售中心
室内设计:深圳市臻品设计顾问有限公司
软装陈设:深圳市臻品设计顾问有限公司
开 发 商 :腾飞集团
项目地点:河南许昌
设计面积:1330㎡
完工时间:2018年
(腾飞·洪河富贵项目面积共计1330㎡,目前一层销售中心已开放,负一层游泳中心、二层健身会所及三层办公区域仍在建设中. . . )

法式浪漫与艺术情怀 | 洪河富贵
提炼法式异域风情及浪漫主义,不局囿于凡赛尔宫的壮丽辉煌,却静默渗透出塞纳河畔的柔美与灵气。



本案— —腾飞·洪河富贵销售中心,设计方案上定位现代法式风格,
立足于国际视野、精致优雅的硬装氛围,在法式中融入新的时尚因子;
整体空间上多采用对称造型,打造出既符合国际审美需求,且同时与现代文化相结合的售楼处空间。


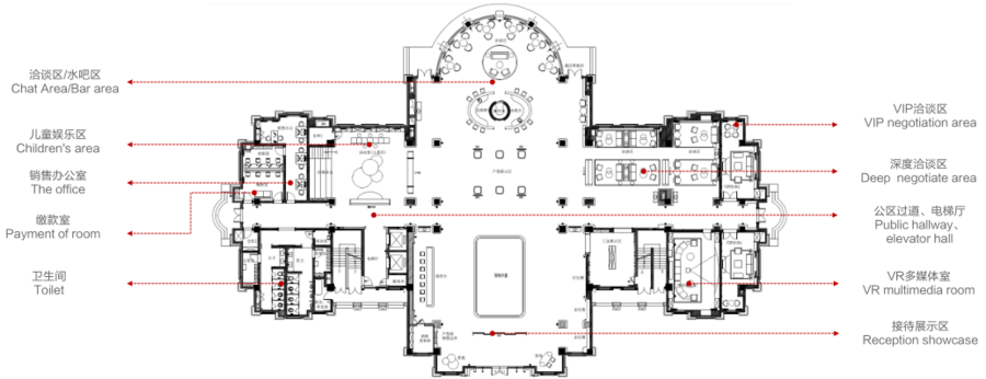
沙盘展示区域于天花顶部设置“轻舞”吊灯造型,飘逸灵动的造型特点,在有着富贵吉祥寓意的国花— —牡丹上,宛若空中舞蹈的灵蝶,时而凌空雀跃,时而优雅盘旋,不甚美妙!又如塞纳河中潋滟波光,予人畔风拂面的轻柔清心之感。布局上,空间形式遵循左右原则,恪守“相敬如宾”作揖对称的规律— —沙盘区对侧为水吧休憩区,过廊左往孩童玩乐区,右至深度洽谈区,设计上以流畅的动线使人在行走过程中对空间布局一目了然,达到舒畅惬意的观赏体验效果。







水吧区域以许昌历史文化遗产— —[钧瓷]演化而成的“花树”造型立足空间主中心,以简单的造型元素提升空间高级感,用精巧的设计手法将宏大的叙事载入空间,以现代为基调,置入法式家具及配饰元素,鲜明的色彩层次及质感的材料运用,诠释出浪漫主义的精髓,以此呈现纯粹高贵的空间之美。

大体空间设计上,主案设计师提炼出文艺复兴时期的流行艺术元素,引入精心挑选的哥特式雕塑及法式建筑挂画,使得空间更具情景化,与此同时,让文艺复兴时期与现代形成不同时空间的交互对话,交叠出浪漫的空间艺术格调。



玩乐区在设计手法上引入书吧功能,为随从前来的小可爱们构筑一片童趣生动的阅览小天地。




深度洽谈区在设计上与主空间相互呼应,造型形式上直线与曲线相结合,硬装以米灰色系为主调,软装配饰上则偏于冷系色调,色彩上跳跃蓝色调。


空间在冷暖色调上注重调和效果,使得空间主次分明、重点突出,在最大程度上做到软硬装结合,充分考虑到色彩之间的调和,营造出空间时尚大方的氛围之时,无处不在渗透出法式浪漫气息。
电梯延廊高垂“贝壳”挂饰,增加走廊的视觉延长性,拉伸空间氛围,使人身临其境而觉空间通畅,舒心愉快。

岁月蹉跎,然时光美好,家不仅仅是房子,更是承载一生中喜怒哀乐的记忆载体。本销售中心特别设置了VR多媒体室,提供参观者休憩场所的同时,也在空间内注入更多“家”在人一生中的真谛。


/ 家具及饰品精选 /






欧模设计圈_室内设计案例推荐:
1. 140㎡ 镜水花月-一个创纪元的SPA馆 | 南京缐状建筑设计
2. 青城山尊酒店 | Studio HBA_欧模设计圈室内设计
更多3d模型推荐: 3d模型下载 3d客厅模型 3d书房模型 3d餐厅模型 3d卫生间模型 3d别墅模型 3d衣帽间模型 3d酒吧模型

一叶知秋
文章:1310 问答:3