- 找3d模型上欧模网
案例 2018年09月28日
70㎡杭州·落差巨大的家 | PONE ARCHITECTURE_欧模设计圈
项目名称:落差巨大的家
设计:PONE ARCHITECTURE
项目设计 & 完成年份:2018年
主创及设计团队:梁穗明&PONE ARCHITECETURE
项目地址:杭州
建筑面积:70㎡
摄影师:恩万建筑影像
我们建造的物质环境,既是物质现象又是社会现象。

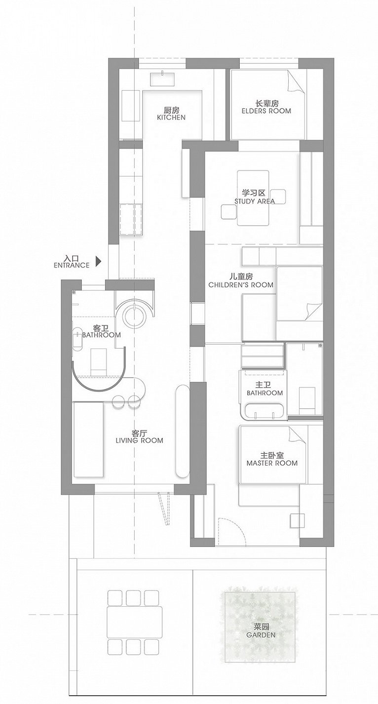
业主是一个二胎家庭,为了给孩子更好的教育,一家六口从优越的130m²搬到不足70m²,有三十年房龄的学区房。70M²的户型,其中20M²户外庭院,50M²室内面积。房子通风性差,潮湿又阴暗,隔音差。一家六口共用一平方的洗手间。由于房子的隔音差,严重影响一家人的休息、睡眠、生活。
▼改造前后空间对比


改造核心六难题:空间布局不合理;三世同堂居住空间小;室内采光极差、通风不佳;收纳空间不足;一楼地面潮湿;老工房隔音效果差。每一步都要在仅存的空间里找到最好的平衡点 ,为委托人保留美学的同时也拥有同样的功能性。

原本已经不大的房子被厚厚的承重墙一分为二。设计师将南北面的老旧小窗替换成整面的大玻璃窗,打开南北对流通风系统,让阳光进入。设计把业主的愿望清单假设成一个个方形模块,利用承重墙的分隔把功能分为“动” “静”分区。空间与空间中动线连接, 面积复合使用。
▼从客厅望向南侧房间,南北通透

▼落地窗带来充足采光

▼南北对流通风系统

▼功能分区

在施工过程中发现楼层底下有60CM的30年积水,这导致一楼潮湿、滋生霉虫、臭气积蓄,必须停工,寻求解决根源方案。第一步,打开房屋地板,把整栋排楼底部积压30年积水抽出;第二步, 用专业烘干灯底部烘一周;第三步,底部烘干后做封闭防水层,彻底解决潮湿问题。

通过移门,可以增加空间的尺度,同时产生环形路线,令小朋友既安全又无忧无虑的玩耍、活动。该系统不单纯是设计“童趣”,更多的是创造环境,让小朋友的成长以及追寻其生活轨迹,在安全环境中学习成长,来实现一个可持续的成长教育,需协助他们形成自身的生活轨迹,书柜上的“洞口”也成为连接父母及孩子的一个窗口。儿童了解里面和外面,必须进去、出来,通过弧形线条把空间的锐角消除,把角落的空间释放出来。


▼通过推拉门创造适合儿童成长的环境

▼主卧室

▼移门系统在空间中形成环路

自然采光之外,设计一套智能化调光系统,保护儿童视力健康。在客厅区与学习区智能的调光系统可以在聚会模式,学习模式,用餐模式,休闲模式之间转换。
▼不同的灯光模式



设计六大收纳系统:玄关收纳,客厅收纳,厨房收纳,冰箱收纳,衣物收纳,书物收纳。共有17M³体积 ,相当于500个20寸的行李箱。
收纳系统

▼丰富的收纳系统

客厅一旁的的餐桌桌脚安装了定向轮,可轻松挪动承担一部分的就餐功能,亦可满足往日父母工作、小朋友绘画学习之用。设计依然考虑了多人正式就餐的需求。



客厅及主卧各有一个洗手间,保证干湿分区以防滑倒,地面也铺设了防滑瓷砖。
▼客厅内的浴室,干湿分离

▼主卧内的浴室


生活有很多的繁忙和各种因素,打乱了对一切美好的期望。通过对家的合理改造,找到生活的本质。房子换了≠生活的品质换。孩子在自由当中找到规则,拥有自己的时间和空间,生命才会完整成长。

欧模设计圈_室内设计案例推荐:
2. 255m²品辰设计 | 苗品记名茶馆_欧模设计圈案例分享
3. 蒋杰室内设计 | 杭州 Luna美燕屋工作室_欧模设计圈
更多3d模型推荐: 3d模型下载 3d客厅模型 3d书房模型 3d餐厅模型 3d卫生间模型 3d别墅模型 3d衣帽间模型 3d酒吧模型

一叶知秋
文章:1310 问答:3