- 找3d模型上欧模网
案例 2018年05月28日

这是一次奇妙的设计之旅,主题“’31度灰’时尚艺术馆”的确定,其实是一个自然生长的过程:所有基础信息透过设计师的大脑,像神奇造物机一样倾然而出。


TAG是一个多品牌的融合空间,售卖男、女装及配饰;风格上既有正式礼服,又有街头风潮衣;既有走秀需求,又有咖啡吧。头脑风暴中我们找到一种“比拟”的空间修辞,通过它,TAG的设计雏形便清晰可见。


在我们眼中,TAG所陈列的时尚商品都可以被看作艺术品,而业主也正是用一种艺术化的品味在经营这个品牌。与业主的第一次交流便明确了设计方向:我们要用“艺术馆”(Gallery)的方式来设计时尚买手店。

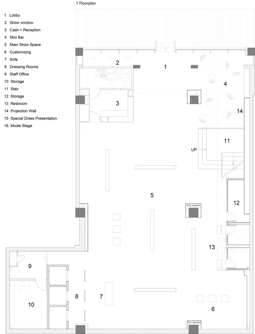
楼梯的设计同样也借鉴了”艺术馆“的思路,使其成为空间的焦点。


在这一主题的引领下,我们借鉴”艺术馆“的空间组织方式,在方形的平面上穿插布置展墙,用以陈列服装;并通过展墙错落的布置,让空间流动起来。在展墙之间,点缀立方体展柜来陈列配饰。


宽敞的楼梯空间一侧,是一面连续的超大展墙,博物馆级别的洗墙灯营造出“艺术馆”的氛围,空间将艺术和时尚紧密链接。

“艺术馆”的主题使我们终于有机会尝试纯灰色空间,不同灰色系材料呈现出丰富的层次和质感。在材质组合搭配上,通过不同材质间的对比则形成一种有张力的戏剧化效果,使得空间的质感丰富且细腻。毛毡、水磨石、花纹铝板、波纹铝板、清水混凝土、艺术涂料、木材和大理石等材料,在空间里交错组合,共同营造了一个微妙的“灰”空间。


在自然光和人工照明的配合下,这个灰色的空间透出淡雅宁静的气质,犹如莫兰迪的画,静谧而迷人。同时灰色“艺术馆”空间所具有的仪式感和神秘感,使得陈列其中的商品获得了艺术化的升华,增强了设计师服装的品质感,有效的提升了人们的购物体验。
首层平面图


标签:
声明:
本文由发布人:【室内设计精选】进行上传及发布,原文章/作品著作权归原作者所有,仅供个人学习交流使用,不构成商业目的;如需商业用途,请联系原作者授权后使用,如涉嫌侵权被追究法律责任与欧模网无关!
本站网友评论及内容发布仅供其表达个人看法,并不表明欧模网的立场或观点。

室内设计精选
文章:350 问答:0