- 找3d模型上欧模网
案例 2018年04月24日
设计公司:WAW architects
位置:比利时
类型:办公建筑
材料:混凝土 钢
2008年,WAW赢得了由OCMW Halle 和 Flemish Government Architect组织的建筑竞赛。该项目旨在通过最低限度的空间介入,令这栋始于1900年代的Old Orphanage众多外部历史特性得以保留。应客户要求,全新的Social Welfare Office需与相邻的OCMW场地之间建立良好的视觉联系。为实现这一目标,设计师在新大楼右侧毗邻停车场和OCMW的建筑立面嵌入全新的公共出入口,悬挑于新入口之上的附加结构是建筑最引人注目的部分,时刻提醒着人们入口的所在,该部分体量被用作多功能会议室。原有的临街建筑入口被保留,但如今它仅作为仪式性的出入口存在,从此处进入,来访者也可抵达前侧会议室。
▼建筑外貌


设计师在原有的封闭的建筑立面上开设两个巨型飘窗。它们分设建筑左右两侧,时刻向街道上的行人展示建筑的内部风采。行人可以直观且清晰的窥视到内部空间,而身处飘窗之内的人们,也可以一览林荫大道上的静谧景观。
▼分设建筑左右两侧的两个大型飘窗



材料
附加的建筑部分采用了混凝土和玻璃作为基本材料。除用拉伸钢材作为第二条紧急逃生楼梯的外部结构外,设计师还用这一材料对原建筑中建造于60年代的电梯井进行加固与装饰,以彰显这两部分的不同。
▼混凝土钢材和玻璃作为附加结构的主要材料



程序
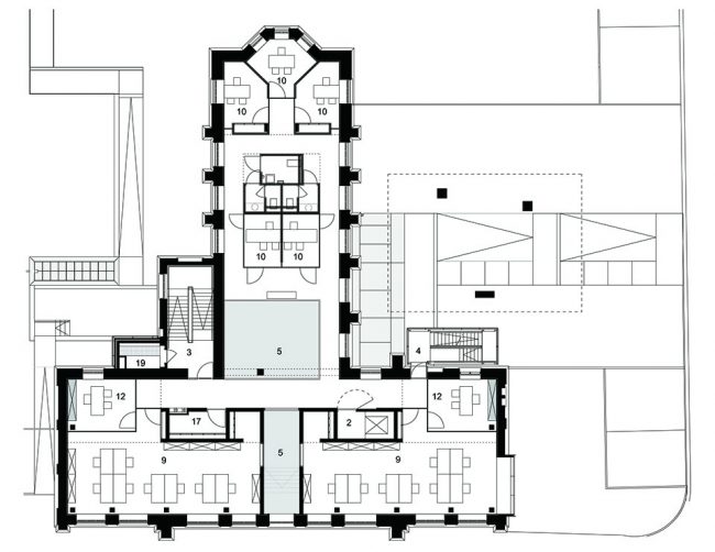
底层入口设置在两栋建筑的十字交叉口处,因此,设计师顺势在交叉口处设置的接待及等候大厅。原建筑昏暗的半地下室空间被彻底转变成通透、明亮、可达性良好的建筑首层,来访者在此处获得接待、会面或短暂洽谈。接待处与等候区的上层空间充分开放,且上下两层拥有良好的视觉联系,让来访者可以轻易观察到楼上的办公情况。
▼位于入口层的接待处和等候大厅

▼接待区与上层办公室建立良好的对视条件


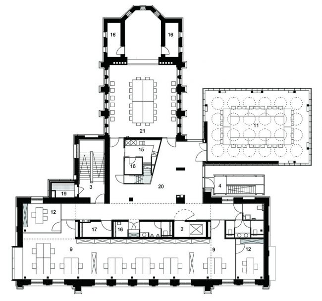
除接待处,会议室和办公室外,该建筑还包括一系列开放接待和讨论空间,一座位于二层的小型礼拜堂及一间档案室。客户希望将这栋Old Orphanage改造成具有开放性的Social Welfare Office办公大楼。按此要求,设计师对现有结构进行彻底拆除,并在建筑内部营造了一系列空间,贯通了内部视线,同时赋予其挑高的天花板和通透的内部隔墙。建筑内部各层尽可能充分开放,以实现内部办公区域的最大灵活性,适应了未来的多种使用需求。
▼通透开放的室内空间



▼通过飘窗与户外对视

位于一二三层的办公空间维持开放的特性,只有部门主管的办公空间拥有封闭的玻璃围墙。新嵌入的多功能会议厅两边设有休息室和小厨房,而同样位于二层并与之相邻的礼拜堂,则被改造为OCMW委员会议会厅。礼拜堂的氛围是封闭而亲密的,而多功能会议厅的氛围则恰恰相反。与其他办公大楼不同,该建筑的档案室并没有设置在地下层或地面层,而是位于阁楼顶层。
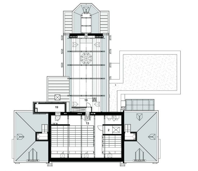
▼位于顶层的档案室


结构
此次改建仅保留了建筑的外貌,在内部嵌入了全新的柱式和楼板。并尽最大可能将混凝土结构、天花板和柱式暴露在来访者面前。与此同时,附加于三层两侧,用于支撑四层档案室的钢结构也被暴露在外。新置入的多功能会议室外立面全部由玻璃幕墙铺设。这一外立面的结构设计灵感来自于礼拜堂的玻璃花窗。礼拜堂的花窗拥有钻石的形状,而这间多功能厅的玻璃幕墙、天花板和隔音墙恰好映射了这一钻石形状。位于天花板上的圆形凹槽则是为了节省对混凝土材料的使用。
▼新嵌入的多功能会议厅


▼新置入的多功能厅


▼呼应教堂的钻石彩窗

技术
地板、墙面和屋顶的隔热特性帮助建筑实现了节能效应。外墙内侧的的隔热性使外侧的历史性外貌得到保留。由于礼拜堂玻璃彩窗与内部细节的种种限制,使得建筑外墙的隔热性难以实现。因此,设计师在彩窗外侧附加一层玻璃窗面以提供更好的保温与保护效果。建筑由低温地暖系统来维持室内温度恒定,极好得适应了高天花板和夹层的对流空间。为了避免室内温度过高,建筑南侧窗面及部分内部空间设有遮阳百叶和调光玻璃窗。收集自屋顶的雨水可用于冲刷马桶及花园灌溉。
▼遮阳幕帘和混凝土隔音凹槽天花板


▼嵌入隔音板的混凝土凹槽天花板



声效
一个开放的建筑空间对隔音效果有严格的要求。开敞的办公室和会议室的天花板均安装了隔音板,此外办公室内部还特别安装了带有滑动隔音板的家具。在大型多功能会议室中,两个隔音板采用方格形图案,呼应了礼拜堂和多功能会议室的花窗。除集成照明系统外,多功能厅的内凹混凝土天花板内还嵌入圆形隔音板。
▼带有滑动隔音家具的办公室

▼会议室

▼办公室/咨询室


色彩
除了维持建筑的朴素特性外,设计师也希望为其装点一些特别的色彩。因此,建筑内各层都嵌入了一些有不同颜色点缀的特殊区域,颜色出众的厨房和固定家具为这些空间增色不少。
▼色彩的运用




▼彩色厨房


修复
此次改造充分尊重了建筑的历史。其中建筑外貌得到了全面保留,室内装饰、细部节点和蓝石构件得到了修护,天然石板材料让屋顶焕然一新。位于礼拜堂之上的原有屋顶塔楼被移除,并近乎由全新的结构所替代。依照原塔楼风格打造的木质窗框分布与新结构表面,以呼应该建筑的历史性。原建筑入口大厅内的水泥砖和大理石台阶被重新利用,天花板挂线盒装饰被重新修复。二层礼拜堂的木质拱顶、玻璃窗面和水泥花砖地板被保留和修复,翻修结束后,位于室内的祭坛又被重新挪入该空间里。
▼保留了礼拜堂中的木质拱顶天花板和彩窗


环境规划
场地拥有一个24车位停车场,一个自行车停车处以及位于场地后身的无障碍专用停车位。预留的雨水缓冲水槽为生态环流和雨水径流做出了贡献。
▼夜景

▼总平面

▼一层平面

▼二层平面

▼三层平面

▼四层平面

▼五层平面

▼剖面



空间设计精选
文章:582 问答:0