- 找3d模型上欧模网
案例 2018年04月04日
设计公司:CohenLeigh Architects
位置:澳大利亚
类型:幼儿园 托儿所 教育中心
材料:砖
大多数离开家庭步入陌生环境的孩子们都会感到害怕和无助,尤其是对那些首次离家的孩子们来说。为了让他们适应陌生的环境,该儿童中心空间以“家”为设计理念。一系列充满趣味性的,活泼生动的空间形态被赋予到空间里,营造了如家的舒适氛围。
▼建筑外貌


坐落于墨尔本南部处于发展中的郊县地区。这栋颇受欢迎的幼儿早教中心,迎合了日益增长的社区生活对儿童早教的各种需求,同时为社区环境营造了多彩活跃的市民生活氛围。孩子们笔下的彩色房子成为该早教中心多彩外墙立面设计的灵感来源。与此同时,建筑外形也与发展中的社区环境相匹配。
▼孩子们笔下的彩色房子成为该早教中心多彩外墙立面的灵感来源


▼与社区环境相一契合的建筑形态

该早教中心的室内设计围绕视觉和身体机能体验为中心展现,并运用多样的色彩主题,和砌砖的堆叠来打造具有导向性的空间感知。
▼多样的色彩主题,和砌砖的堆叠打造出具有导向性的空间感知


室内环境包括两个游戏空间,母婴及保育室,厨房和员工工作室。内部游乐空间的方向和布局确保了各空间均与室外环境建立良好的连接,实现了室内外活动的灵活转变,并拥有充足的自然采光和良好的通风效果,建立与户外景观的视觉对视。此外,大型户外游乐空间为各年龄层的孩子们提供了更加丰富的活动氛围。
▼充足的自然采光

▼如家的氛围

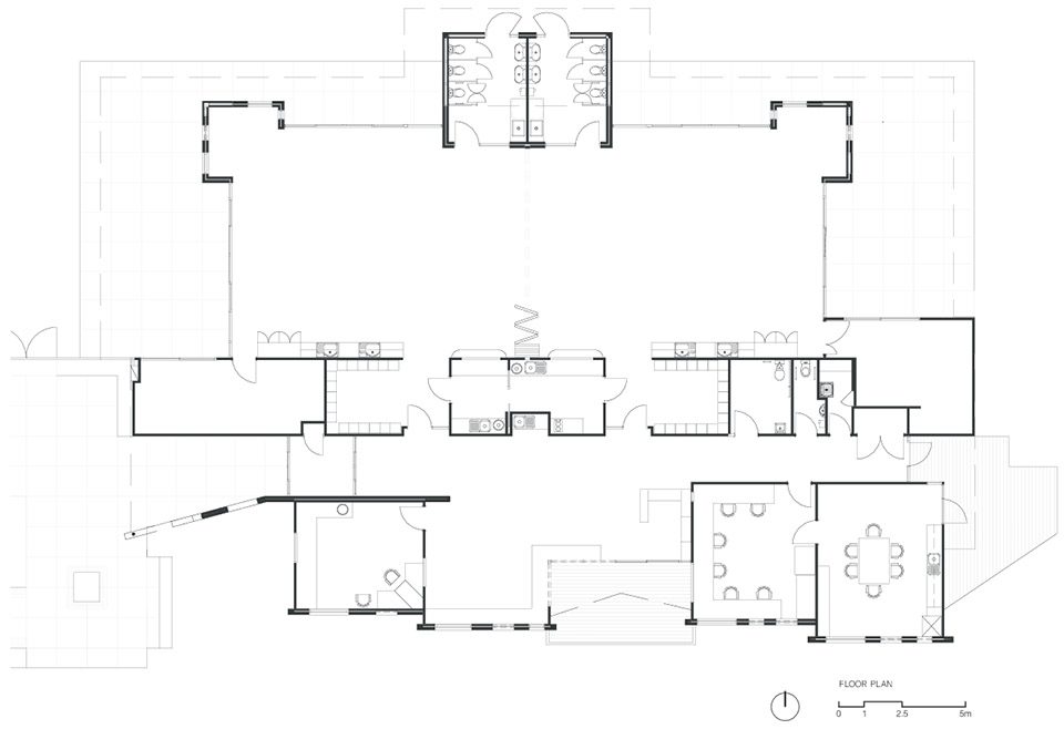
▼平面图

▼立面图


▼剖面图



空间设计精选
文章:582 问答:0