- 找3d模型上欧模网
案例 2018年03月07日
金扣子是济南很有名气的一家以定制和销售各类高端旗袍为主的服装店。店主经营的非常用心,对旗袍有非常独到的诠释与理解,不愧是专业高端定制。设计的旗袍温婉绚丽,深得客户喜爱,所以这次的设计色彩也是应店主要求,要把旗袍的大美倾城设计其中,以红色与白色调为主,凸显本店悦目的风格。
一层主要围绕旋转楼梯把服装展示出来,,楼梯上旋转隔断和进门多层荷花吊顶呼应,展示中式旗袍不凡的气质,并点亮设计整体。
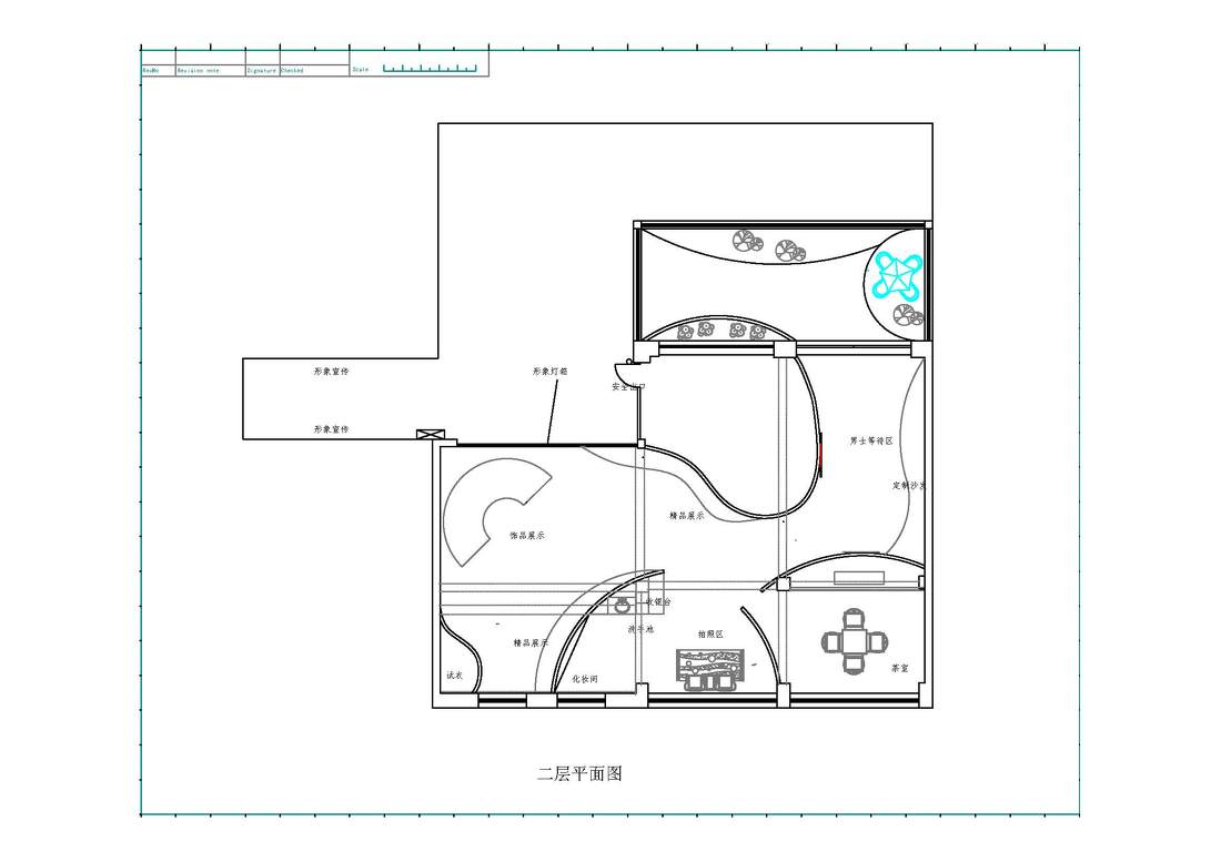
二层功能较多,设计有茶室,培训室和摄影区。所有隔墙采用流线型设计,充分展示女人与旗袍优美的线条。吊顶与楼梯墙面大树是整体造型的亮点,非常舒展,整体协调。白色、红色与蓝色的搭配深得店主喜爱。二楼一进门云纹吊顶含蓄婉约,新中式时尚女人精致的感觉很是符合店主气质。
门头设计采用铜门雕刻,传承老店风采。






















【女神简介】

独立设计师
擅长空间 :家居住宅、别墅豪宅、会所、样板房、商业展示
设计理念 :真正的家居设计,就是懂得节制和尺度,做到恰到好处,这是设计的标尺。
标签:
声明:
本文由发布人:【空间设计精选】进行上传及发布,原文章/作品著作权归原作者所有,仅供个人学习交流使用,不构成商业目的;如需商业用途,请联系原作者授权后使用,如涉嫌侵权被追究法律责任与欧模网无关!
本站网友评论及内容发布仅供其表达个人看法,并不表明欧模网的立场或观点。

空间设计精选
文章:582 问答:0