- 找3d模型上欧模网
案例 2018年03月06日
设计:肯思GAZER设计事务所
主设:邬逸冬
摄影:稳摄影工作室
文字:林森
面积:300平方米
主材:水磨石、GRC、实木复合地板、白色订制涂料
美,来于自信,无需艳丽妆容华美外衣,自内心而发,便会裙摆飞扬。于是将设计定位为素雅空间内体现一种柔美自信的张力。进门处双弧形的设置,增强代入感。弧形玻璃配以点阵图案,在视觉上制造动态。椭圆形前厅内,利用黑色高光软膜营造压迫感的表皮,视为释放前的序曲。
▼进门处双弧形的设置增强代入感

▼入口细节


▼椭圆形前厅内利用黑色高光软膜营造压迫感的表皮


美容区通道部分没有采用传统顶部照明,以设计主题结合GRC在原本呆板的墙面上塑造出裙摆飞扬的曲线,利用底部漫反射光源使空间升腾出轻柔感。壁面粉色壁灯进一步增加了光线层次,同时亦是各包间的导视符号。面积并不从容的空间里,以近乎纯白色调扩容视觉,通过光影、材料、肌理、线条的相互关联,体现多样变化,旨在将优雅和专业的双重属性赋予aoyama。
▼近乎纯白色调扩容视觉


▼细节


进入主厅,首先展现的是由上百根光纤线构成的美甲区,辅以仪式感的主宾位,将原本枯燥的美甲过程以梦幻的氛围呈现。
▼由上百根光纤线构成的美甲区



美容包间内的氛围营造上,以三种规格的白色瓷砖区隔出上下两个段落,下部通过凸起的墙面造型取消了踢脚线,增设了地面回光。与门等高的上部横向线条在视觉上扩容,内置灯光折射于墙面,使空间氛围恬静柔美,同时更好的避免了工作过程中产生的光照阴影。
▼内置灯光折射于墙面

▼与门等高的上部横向线条在视觉上扩容

▼以三种规格的白色瓷砖区隔出上下两个段落


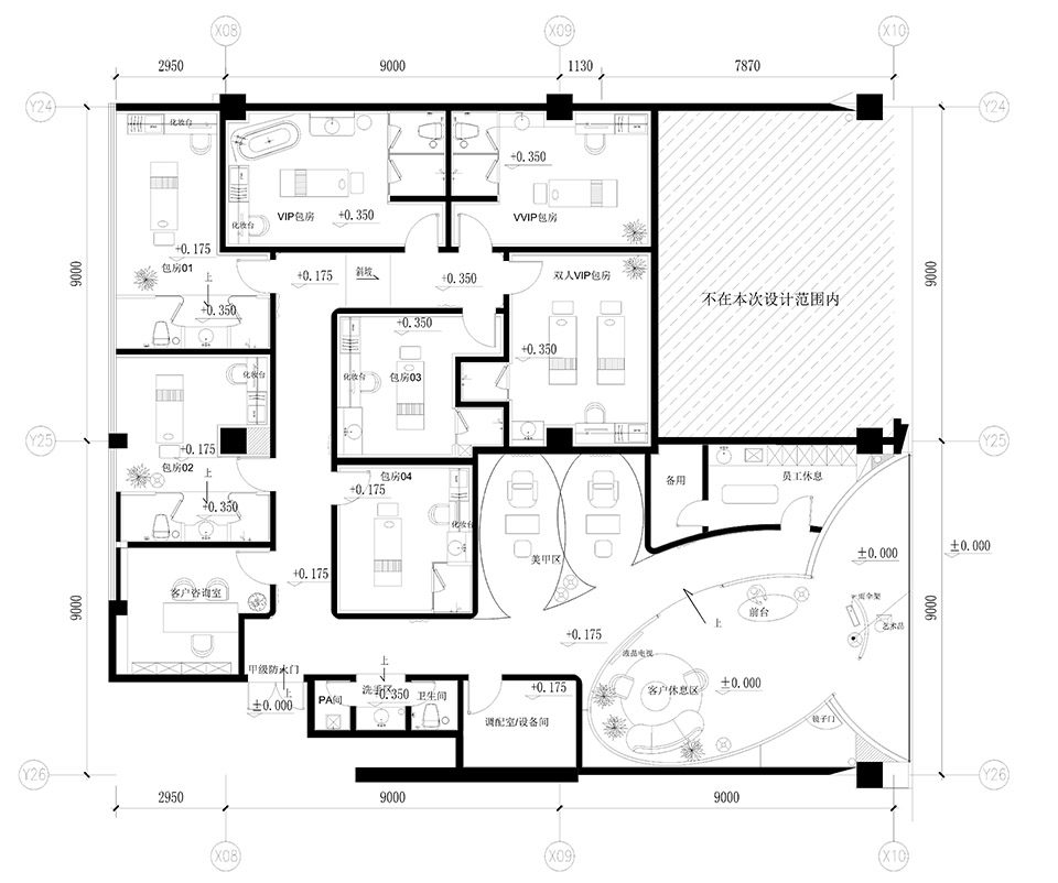
▼平面图

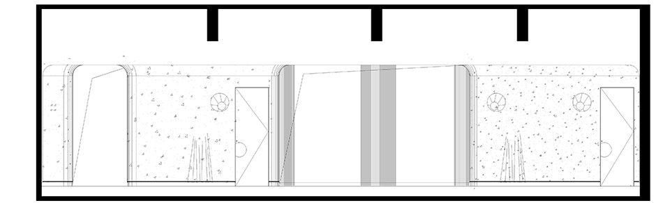
▼立面



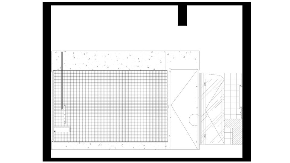
▼细节


空间设计精选
文章:582 问答:0