- 找3d模型上欧模网
案例 2017年07月28日
项目信息
建筑事务所:SAMYN and PARTNERS
位置:比利时 布鲁塞尔
建筑设计:Phillipe Samyn
合作负责伙伴:B. Vleurick
面积:560平方米
类型:住宅
图像编辑:Marie-Françoise Plissart, Vincent Everarts, Andres Fernandez MarcosProject Info
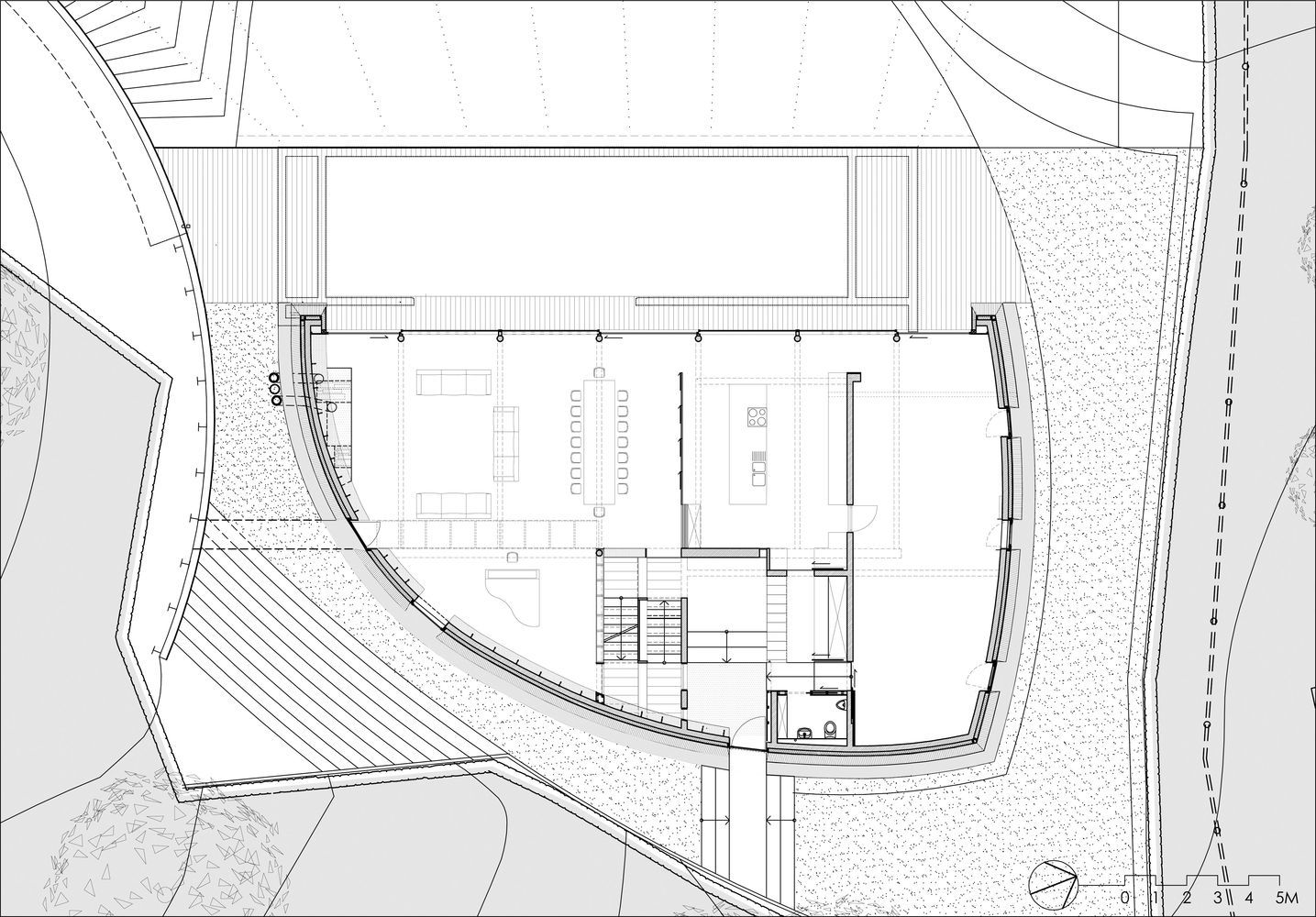
这是一间艺术家的房子,包含一栋现存的小房子,水平面与街道齐平。现在房屋新添门厅、家庭娱乐室、厨房、起居室和楼梯等设施。

二楼包括主卧,配备浴室,儿童房和卫生清洁设施。房子还有一层夹层,由网格玻璃立面所围合而成。

房子的立面以倒角的形式呈现,同时还是垂直绿化,这种立面形式很大程度保障了房子的隐私性,也保障了南侧临街立面的封闭性。相比之下,西立面完全是由玻璃墙装饰,看起来仿佛一扇宽敞的分割式窗户。有1.6米宽的白色涤纶窗帘,悬挂在这扇大窗户上,以确保夏天的阴凉设计资讯网站。

起先,它像一堵铜绿色的墙,渐渐地,立面被植物学家Patrick Blanc精心挑选的植物慢慢覆盖,直到布满整片屋顶。

我们设计出合理的结构、隔热层和密封的防水层,以解决建筑物理问题。也为植物的浇灌、施肥提供必要的便利系统,这些系统被固定在坚硬的PVC板上。


图纸

场地平面图

一层平面图

二层平面图

三层平面图

四层平面图

横剖面图

纵剖面图




Patrick Blanc草图









模型

设计宅家居优选
文章:1583 问答:0