- 找3d模型上欧模网
案例 2024年07月06日

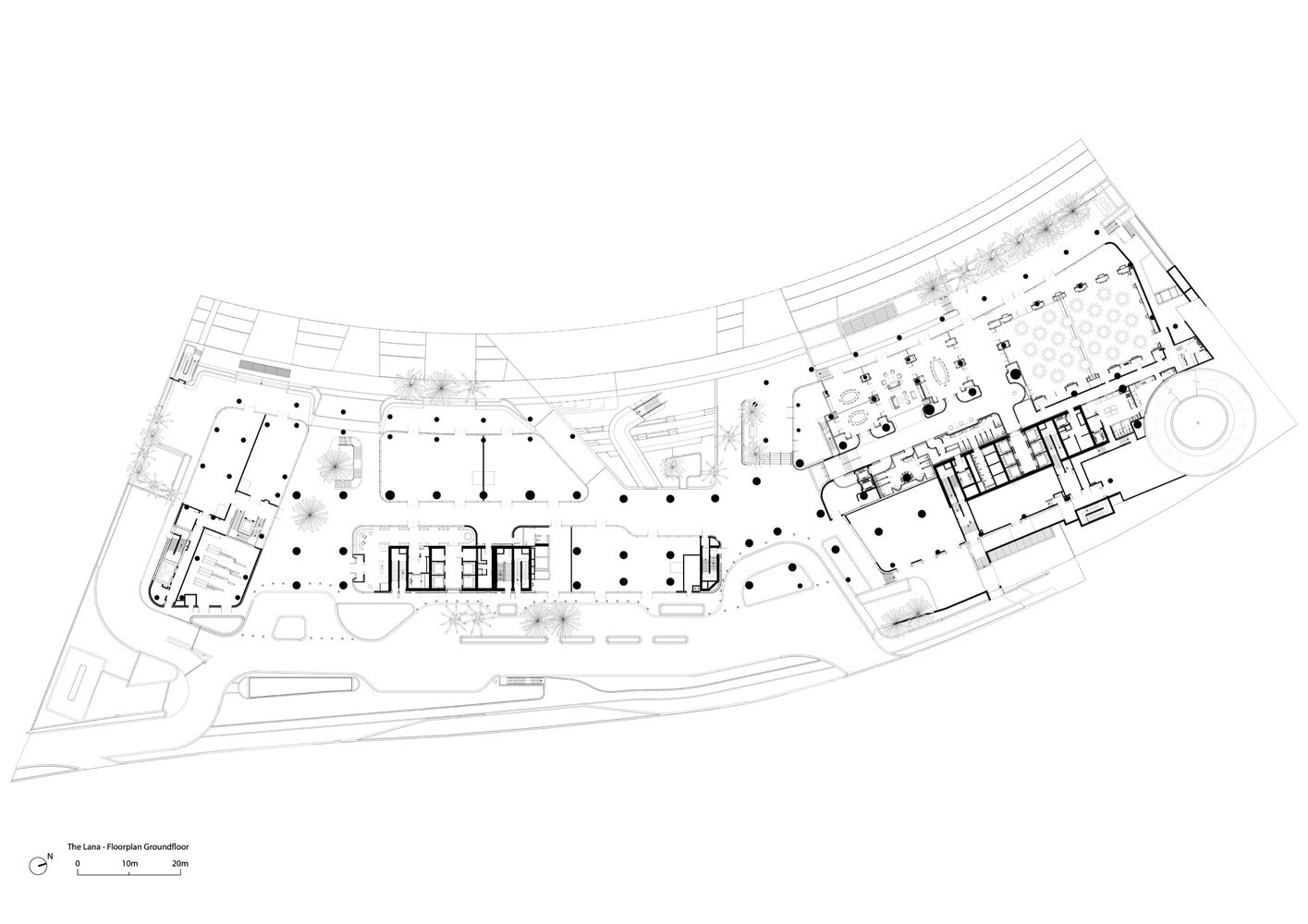
在迪拜市中心与设计区间的Marasi海湾畔,一座崭新的海滨豪华生活区正冉冉升起,成为都市璀璨明珠。此项目核心为七座相连的垂直花园,构建于长达12公里的海滨长廊心脏地带,以漂浮别墅与游艇泊位为亮点,营造独特生活方式。底层架空设计确保码头与入口道路视线畅通,同时打造中央景观公共空间。沿岸商铺、餐厅与咖啡馆交织成一幅生动画卷。
酒店与住宅分别坐落于两幢交错的高楼内,各享31层与30层视野。抵达时,水景、雕塑与滨水风光构成震撼体验。绿植环绕的餐厅与用餐区,设有双层至四层挑高空间,其中隐匿的秘密花园提供静谧避世之所。厨房花园则为美食爱好者提供精致用餐选择,尽享室内与户外双重宁静。
Lana住宅区,专享私密水景与绿地,配备专属代驾直达游艇泊位,39套公寓尊享第23层会员花园。酒店宾客可在空中花园俯瞰迪拜天际线,屋顶花园与无边泳池增添非凡体验。悬挑结构覆盖室内与花园,确保全年使用,深阳台减少空调需求。此建筑不仅创造城市新公共空间,还融入Low-E玻璃与被动冷却等可持续特性,回馈社会与自然。








































∇ 平面图





标签:
声明:
本文由发布人:【丛立群】进行上传及发布,原文章/作品著作权归原作者所有,仅供个人学习交流使用,不构成商业目的;如需商业用途,请联系原作者授权后使用,如涉嫌侵权被追究法律责任与欧模网无关!
本站网友评论及内容发布仅供其表达个人看法,并不表明欧模网的立场或观点。
丛立群
文章:4 问答:24