- 找3d模型上欧模网
案例 2023年10月18日

旅行度假,是一种生活方式。拥有一座理想的度假居所,则能让这种美妙的体验持续地浸润于日常,让度假的视觉美学、情感记忆、精神价值时刻萦绕。这一次,在珠海横琴,设计师方磊领衔壹舍团队,为业主严先生夫妇倾心打造了这一居所,让“宅家即度假”成为了现实。
“90后海归夫妇,旅居海外多年并处于回国创业阶段,常年是候鸟迁飞的状态,他们畅想轻生活、慢节奏的度假氛围。在好友引荐下,并对我们一系列作品所呈现的‘现代简约融合都市气质’印象颇深,大家在见面畅谈后一拍即合,迅速开启了本次合作。都市度假居所也是双方一开始就明确的设计落点。”方磊坦言道。


设计上以国际视野为担纲,从在地性出发,并以壹舍团队一贯擅长的简约手法铺展开空间的多维描述,捕捉现代格调与海滨风情的深度结合,让居者足不出户就能感受到大自然给予的闲适时光,打造出都市度假式的生活体验。

基于平面布局,设计师整合原始柱体结构,并梳理出洄游灵活的动线,勾画通透却又耐人寻味的界限。客餐厅与厨房、阳台、泳池一体化衔接,在开敞互联间,让轻松、互动在每一个角落绽放。巨大的落地窗在开合之间带来绝佳的视野与采光,远方的旖旎风光尽收眼底,也创造出无比丰富的内外关系。


而纯粹的的肌理、棉麻的布艺、质朴的原木、活力却不张扬的皮革,也在高低起伏、错落层叠中,让每一寸空间都散发着舒畅的气息。


无论是色调、构图亦或是意境之感,设计师皆强调与整体氛围的浑然交融。餐桌后的画作,充满着海洋般的深邃与迷离,在界限外延、海天相连的一瞬,显得极简、平静与唯美。


泳池随阳台顺延而出,恰如精致的璞玉,深灰色马赛克的独特纹理,静谧的倒影,让宁静和清凉沁人心脾。碧绿的蓝天连接着透亮的水波,私家独享畅游其中,无比自由惬意。


设计注重化零为整,厨房以BOX体块构筑温馨场域,既整合了空间关系,又预设充足的收纳功用,在选材和处理手法上则遵循壹舍团队一贯的克制平衡之道。


中西厨在尺度的拿捏上极具巧思,通过和谐的穿插关系与巧妙的材质碰撞,加强整体的融合感与匹配性,反应了设计师对张弛有度的熟稔把控。长岛台同时也是业主夫妇的情感延续,作为国外旅居的房屋缩影,直观触动着他们的思绪,也赋予其更契合、便利的生活方式。



在某一瞬间邂逅不期而遇的惊喜,无疑是生活情趣的注入。“我们充分考量步入主卧套间的第一感受,以前方的窗景和明亮简洁的浴室相迎。同时利用大块镜面去反射、渗透,为其扩容,既保证各功能区的顺畅流转,又可让淡然的气韵自由穿梭,可谓每一个角落都令人身心愉悦。”方磊介绍道。严先生夫妇对此也分外满意。



此外借由温润和煦的基调、冷暖相融的材质、灵活细腻的陈设,以及深浅有序的组合,共同散发出平和安宁的氛围。



次卧套间为偶尔入住的长辈打造,在柔和悦目的呈现中,显得干净利落。床头采用壹舍惯用的三角构成手法,打造入室的视觉落点,也增添了妙趣与暖意。床背景上分割条,乃至悬浮柜体的设置,可见蕴藏其中的细节从不缺席。

次卫立面也一改常态,以深色石材代替马来漆。除了材质的转化,镜面与台盆区域同样蕴藏着诸多心思:镜面四周借由极富构成感的线条打破单调,两侧竖向灯带则让中心主体更加聚焦。卧室的体块处理手法亦于此延续,整体考量与局部凸显并重,带来别样风采。


室内对造型、尺度的把控,同样关乎居住感受。客卧床头柜采用高低式布局,柜体舍弃一体顺延至顶的形式,渲染轻盈的呼吸感,不经意间释放出宁静、慵懒的包容气息。

这座珠海横琴度假居所,远离浮躁喧嚣,挖掘自然与空间美学,以设计承载并服务于生活,让业主夫妇在这个繁杂的都市生活中,拥有属于自己的避风港,在全方位的感官触觉体验下,褪下疲惫,拥抱最舒适安逸的状态。同时在平和中传递并实现着“大隐隐于市,归家即度假”的探寻,也令外在的呈现与内在的价值达到统一。

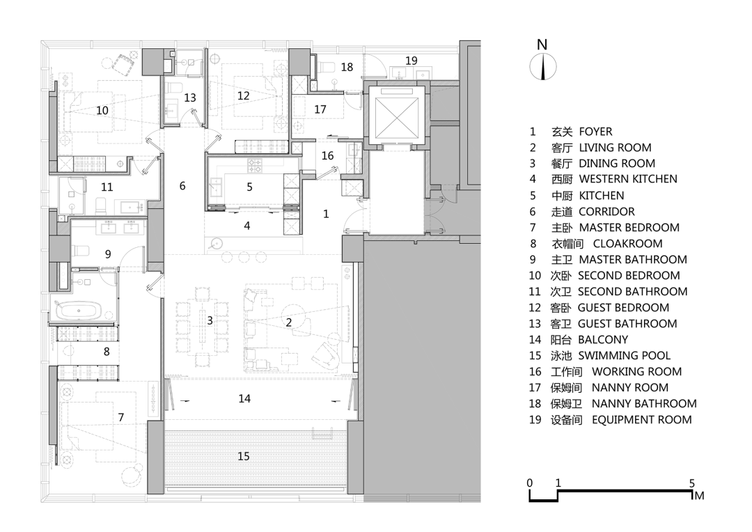
平面图▲
项 目 信 息
项目名称|珠海横琴度假居所
项目面积|220㎡
设计公司|ONE HOUSE DESIGN 壹舍设计
设计主创|方磊
参与设计|蒙程鹏、胥磊
视觉陈列|李文婷、李美萱
项目摄影|朱海

方磊,现代简约设计先行者,都市精英生活方式引导者,壹舍设计创始人。
近年来获得诸多国内外室内设计大奖。他认为设计师思维是感性与理性的结合,擅长用现代简约的美学精神展开空间多维描述,以克制与平衡的手法、表象和内在的矛盾统一来表现丰富而纯粹的设计本质。
ONE HOUSE DESIGN壹舍设计 由方磊创建于2009年,凝聚了一批拥有前瞻性理念、国际化视野的活力团队。作为集室内设计、软装设计、环境设计等一体化的综合性专业设计公司,壹舍主要从事地产售楼处、样板间、会所、商业空间、办公空间、精品酒店等设计项目,为众多知名地产商提供至高水准的个性化定制服务。以过硬的专业能力和不懈的探索,积极面对未来与市场的全新考量,致力于当代新人居观念的启迪与更新,为设计提供更多可能。
本文为授权发布,谢绝转载-
投稿扫码加微信
omcn2007


欧模网官方
文章:370 问答:0