- 找3d模型上欧模网
案例 2023年09月05日
飮水村咖啡第二家店选址在成都青羊区牧电路,位于老街的住宅底层商铺内,二店在一店咖啡功能基础上拓展了以鸡尾酒为主的夜间酒吧功能。主理人希望在新店的设计中延续老店的基本气质:质朴真实的材料表达;独特亲切的空间氛围;谦和融入的街道姿态。设计延续飮水村咖啡店基因的同时,在空间利用、公共性表达和材料建构等方面有所尝试,为品牌提供似曾相识又别具一格的环境体验。
The second store of“Yinshui Cun” Coffee is located in Mudian Road, Qingyang District, Chengdu, in the ground-floor shops of the old street. On the basis of the coffee function of the first store, the second store has expanded the function of night bar focusing on cocktails. The manager hopes to continue the basic temperament of the old store in the design of the new store: simple and authentic material expression, unique and intimate space atmosphere, and a modest and integrated street attitude. While the design continues the DNA of the coffee shop in the “Yinshui Cun”, it also tries to use space, public expression and material construction to provide the brand with a familiar and unique environmental experience.
▼外观,Exterior view

▼周边环境,Surrounding context

竖向设计
Vertical Design
项目改造前为面积约80平米的挑高空间,室内地坪至梁底、板底的净高分别为4.4米、4.9米,用常规方式搭建夹层,上下两层高度都会比较局促。该物业为钢筋混凝土框架结构,地圈梁基础,下部没有地下室,我们很快确定了在竖向上寻找空间可能性的策略。
Before the renovation, the project was a high-ceiling space with an area of about 80 square meters. The clear heights from the indoor floor to the bottom of the beams and the bottom of the slab were 4.4 meters and 4.9 meters respectively. If the mezzanine is built using the conventional method, the height of the upper and lower floors will be quite cramped. The property is a reinforced concrete frame structure with a ground ring beam foundation and no basement below. We quickly determined a strategy to find space possibilities in the vertical direction.
▼纵剖面图,longitudinal section

▼横剖面图,cross section

▼下沉客座区位于公共走道一侧,The sunken seating area is located on the side of the public walkway

▼下沉客座区,Sunken seating area


▼俯瞰边庭空间,Overlooking the courtyard space

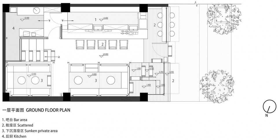
设计将地面层局部开挖,降低标高,形成下沉空间:吧台内部降低,提升了吧台内部调酒师、咖啡师的使用舒适度,顾客在落座后能够与服务者基本平视,形成友好的视线交流关系;后勤区内部降低,为操作者提供相对舒展的操作空间;客座区内部降低,创造出略矮于公共走道的独立客座区域,为顾客提供了私密且独特的空间环境。入口右侧,吧台、后勤、公共走道等区域上部,布置了开敞的活动空间,满足放映、沙龙、演奏等公共性功能的要求。入口左侧,独立的下沉客座区上部,面向通透的沿街界面,布置层层退叠的阶梯式客座区,形成了一个变化的边庭,为经营提供了丰富且相对私密的有趣场所。
The design partially excavates the ground floor, lowers the elevation, and forms a sinking space. The interior of the bar is lowered, which improves the comfort level of the bartenders and baristas inside the bar. After sitting down, customers can basically look at level with the server, forming a friendly visual communication relationship. The interior of the logistics area is lowered to provide a relatively stretched operating space for the operator. The interior of the guest seating area is lowered to create an independent guest seating area slightly lower than the public aisle, providing customers with a private and unique space environment. On the right side of the entrance, an open activity space is arranged in the upper part of the bar, logistics, public walkways and other areas to meet the requirements of public functions such as screenings, salons, and performances. On the left side of the entrance, the upper part of the independent sunken guest area faces the transparent street interface. Layers of stepped guest areas are arranged to form a changing side courtyard, providing a rich and relatively private and interesting place for business operations.
▼下沉客座区与上部跌退的平台,Sunken guest seating area and upper setback platform

▼变化的边庭空间,Changing courtyard space

响应街道
Corresponding Street
飮水村的店面选址总是在商业环境不完全成熟,营商氛围不那么热门的区域,这样的决策降低了房屋租金的压力,同时也带来经营上的风险。值得称道的是,飮水村总能在狭缝中找到生存的办法,甚至成为所在街道改造的先行者,为将来区域的有机更新起到一种民间、日常的示范作用。
The location of the storefronts in the “Yinshui Cun” is always in an area where the business environment is not fully mature and the business atmosphere is not so popular. Such a decision reduces the pressure on housing rents, but also brings operational risks. What is commendable is that the “Yinshui Cun” can always find a way to survive in the slits, and even become a pioneer in the reconstruction of the streets where it is located, playing a non-governmental and daily demonstration role for the organic renewal of the area in the future.
▼可开启的建筑表皮,Openable building skin


▼为街道提供休憩场所,Provide a resting place for the street

▼室内与街道的对话,Dialogue between interior and street


二店的设计目的是在沿街立面处理上达到更大的公共性,以更加开放、包容、共享的姿态响应街道:外立面设计以全通透界面联系室内外,相同模数下划分出不同尺寸的透明玻璃扇,以谦和低调的姿态融入街道环境;玻璃界面以平开门、上翻窗、折叠上翻窗、连续平开窗等不同的开启方式向街道打开,在秩序中创造出连续性和丰富度,成为可以呼吸的建筑外表皮;打开的空间形成沿街吧台和休息平台,为街道提供宜人尺度的共享设施,作为街道的功能补充,以实现店铺在社会层面的公共性和责任感,创造街区的活力。
The design purpose of the second store is to achieve greater publicity in the facade treatment along the street, and to respond to the street with a more open, inclusive, and shared attitude. The exterior facade design uses a fully transparent interface to connect the interior and exterior. The same module is divided into transparent glass fans of different sizes, integrating into the street environment with a modest and low-key attitude. The glass interface is opened to the street by different opening methods such as casement doors, upward-turning windows, folding upward-turning windows, continuous casement windows, etc., creating continuity and richness in order, and becoming a breathing building skin. The open space forms a bar counter and a rest platform along the street, providing shared facilities of a pleasant scale for the street, as a functional supplement to the street, so as to realize the publicity and sense of responsibility of the store at the social level, and create the vitality of the block.
▼共享的半室外平台和吧台,Shared semi-outdoor platform and bar


搭建空间
Construction of Space
项目的深化和实施工作,需要在成本可控的范围内完成多层标高的空间营造。设计采用钢结构作为主体结构,结合上部直铺的架空实木地板,形成轻便集约的梁、柱、板结构体系,最大限度的争取了室内层高。
The deepening and implementation of the project requires the completion of multi-level space construction within a controllable cost range. The design adopts the steel structure as the main structure, combined with the overhead solid wood floor laid directly on the upper part, to form a light and compact beam, column, and slab structural system, which strives for the maximum indoor floor height.
▼钢构架建造方式模糊室内外界限,The steel frame construction method blurs the boundary between indoor and outdoor

▼结构钢架成为室内划分的基本构件,Structural steel frame becomes the basic component of interior division

▼阶梯退台的独立客座空间,Independent guest space with stepped steps

钢结构系统分为主要结构、次要结构、附属结构三部分:主要结构以工字钢梁、柱为材料组合使用,运用在结构加固和相对大跨度的部位,支撑起开敞的二层活动空间;次要结构以角钢为材料搭建,利用有效的小尺寸截面构件实现灵活的竖向布局;附属结构的设计在地板龙骨、局部窗框、预埋支撑基层等处仍采用角钢构件,在满足安全要求的前提下,做到构件的截面最小化,达到节约用材的目的。工字钢、角钢等型材合理、充分使用,以效率为基础,营造出视线交错、自然分层的室内环境。
The steel structure system is divided into three parts: main structure, secondary structure and auxiliary structure. The main structure is a combination of I-beams and columns, which are used in structural reinforcement and relatively long-span parts to support the open second-floor activity space. The secondary structure is built with angle steel, using effective small-sized cross-sectional members to achieve flexible vertical layout. In the design of the auxiliary structure, angle steel components are still used in the floor keel, partial window frame, embedded support base, etc. Under the premise of meeting the safety requirements, the cross-section of the component is minimized to achieve the purpose of saving materials. Sections such as I-beams and angle steels are used reasonably and fully, and based on efficiency, an indoor environment with staggered sightlines and natural layers is created.
▼二层开敞的大空间,Large open space on the second floor

▼从二层大空间看向退台的“边庭”,Looking from the large space on the second floor to the retreating platform

我们在飮水村二店的设计中,以务实的构筑方式搭建有效的空间环境,以开放的立面方式响应街道公共性的召唤,以巧妙的竖向设计完成丰富功能内核的塑造。我们与飮水村一起,去完成一个小店之于社区的使命。
In the design of the second store of “Yinshui Cun”, we built an effective space environment with a pragmatic construction method, responded to the public call of the street with an open facade, and completed the shaping of a rich functional core with an ingenious vertical design. Together with “Yinshui Cun”, we will fulfill the mission of a small shop to the community.
▼建造细节中现场预制的水泥阶梯,Concrete stairs prefabricated on site

▼夜览,Night view

▼一层平面图,ground floor plan

▼二层平面图,second floor plan

项目名称:飮水村咖酒吧
项目类型:改造 | 商业空间
设计方:成都凡筑建筑设计有限公司
公司网站:视频号 凡筑ArchFAN
联系邮箱:cdfzdesign@qq.com
项目设计:钟梓洵
完成年份:2023
设计团队:薛杰元、温文喆、谢君盟、岳蜀渝
项目地址:成都市青羊区牧电路
建筑面积:150㎡
摄影版权:存在建筑、阎渊
客户:飮水村咖酒吧
材料:型钢、防腐木地板、青砖
Project name: “Yinshui Cun” Coffee And Bar
Project type: Renovation of Commercial Space
Design: ArchFAN
Website: 视频号 凡筑ArchFAN
Contact e-mail:cdfzdesign@qq.com
Design year:2022
Completion Year:2023
Leader designer & Team: Leader:Zhong Zixun Team:Xue Jieyuan, Wen Wenzhe, Xie Junmeng, Yue Shuyu
Project location:Mudian Road, Qingyang District, Chengdu
Gross built area:150 ㎡
Photo credit: Arch-Exist,Yan Yuan
Clients: “Yinshui Cun” Coffee And Bar
Materials: Steel,Wood,Brick
标签:
声明:
本文由发布人:【137****7830】进行上传及发布,原文章/作品著作权归原作者所有,仅供个人学习交流使用,不构成商业目的;如需商业用途,请联系原作者授权后使用,如涉嫌侵权被追究法律责任与欧模网无关!
本站网友评论及内容发布仅供其表达个人看法,并不表明欧模网的立场或观点。

137****7830
文章:512 问答:0