- 找3d模型上欧模网
案例 2023年07月24日
该项目是翻新一座杂居建筑,将四个商店重组为一个商店。四家店铺既要保持各自的个性,又要保持店铺的统一感。因为店铺有很多的粉丝,所以既要保持每个店铺的氛围,同时也要体会到业主对改变的期待。该项目的主题是维持现有商店的大气的氛围,同时兼顾清新干脆的张力。立面也需要散发出这样的氛围感。我们的想法是通过调整空间的“水平高度”,毫无保留地将建筑吃(用)尽。
The project involved the refurbishment of an old, miscellaneous building and the reorganisation of four shops into a single shop. The project required a sense of unity as a shop, while maintaining the character of each of the four shops. As the shops have many fans, it was necessary to maintain the atmosphere of each shop, but at the same time the owners’ expectations for change were also felt. The theme of the project was to maintain the generous atmosphere of the existing shops while at the same time maintaining a crisp, fresh tension. The facade was also required to give off such an air. The idea was to eat up (use up) the building down to the smallest detail by adjusting the ‘level’ of the space.
▼店铺外观,store appearance

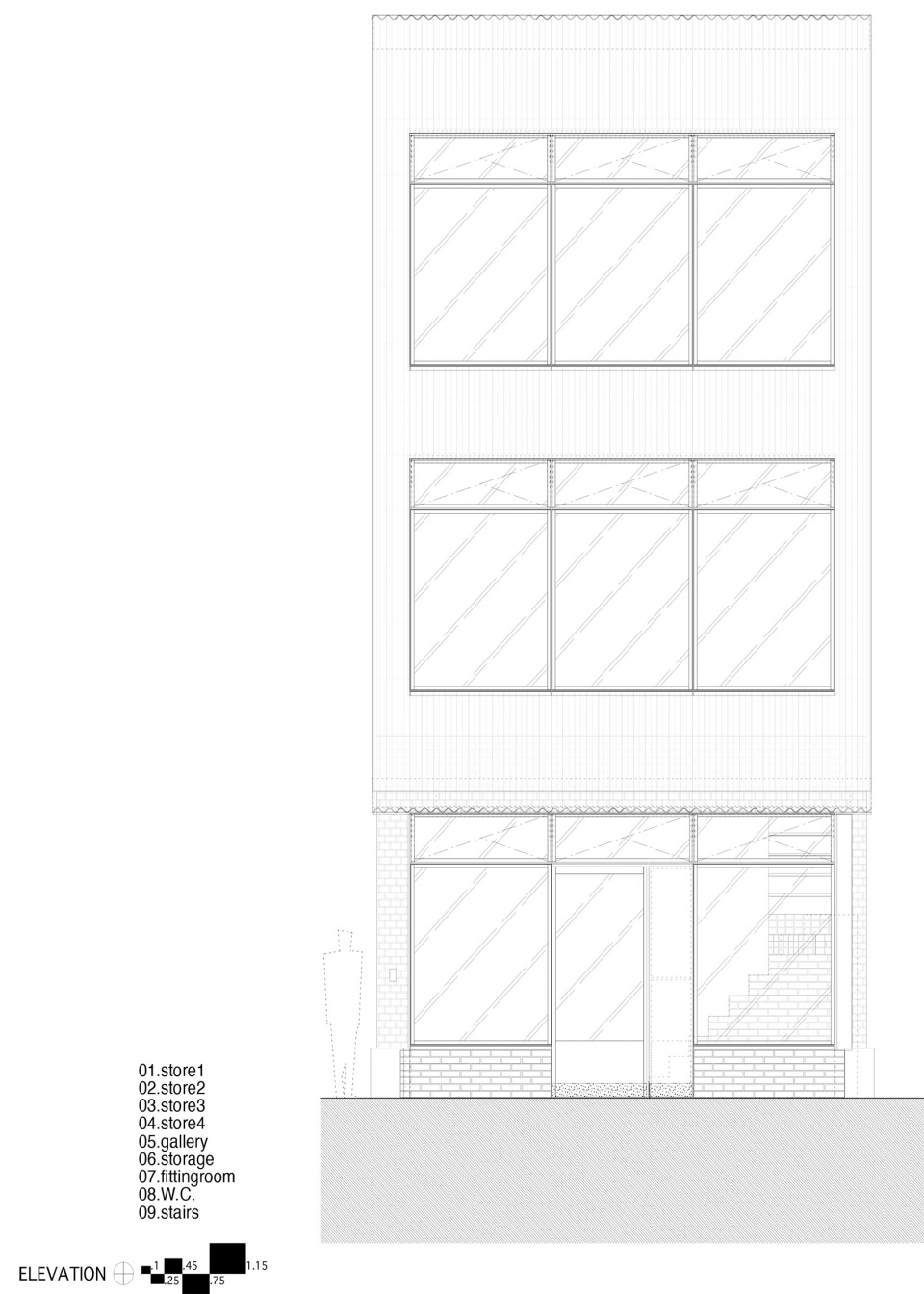
立面
Facade
外墙立面装饰着细长高大的窗框和薄薄的硬纸板镶嵌,创造了一种柔和的外观姿态,与周边建筑相比有着更低矮的轮廓,似乎已经存在很久了。为了防止板材边缘变得太重,建筑师利用既有的建筑构件来增加曲线的柔和度,并通过这一熟悉的物件来传递一种幽默感。此外,楼梯也使用了砖块,营造了内外的连续性,同时砖块从立面上向外突出形成体量,与轻巧的外墙形成对比,吸引人和物体在入口区域逗留。
The large, slender sashes and flimsy, cardboard-studded exterior walls create a softer appearance, with a lower profile than its surroundings, as if it had been there for a long time. To prevent the slate edges from becoming too heavy, pre-existing elements were used to add softness to the curves and a sense of humour through the use of familiar objects. Furthermore, the bricks used for the staircase create a sense of continuity between the inside and outside, and in contrast to the flimsy exterior walls, they protrude from the façade as a volume, allowing people and objects to linger around the entrance area.
▼砖块楼梯营造了内外的连续性,the bricks used for the staircase create a sense of continuity between the inside and outside

▼利用既有的建筑构件实现立面的曲线,pre-existing elements were used to realize the curves of facade

立面使用了纸板和砖块,慎重地保持着颜色平衡,原有有的绿色瓷砖被引入立面,而不会使其看起来过于“和风”, 在某种程度上表达了店铺的历史,对面的住户都评价为“复古”。
The use of slate and brick on the façade, carefully balanced in colour, brings the existing green tiles into the façade without making it look ‘Japanese’, and immediately expresses the history of the shop to the extent that the residents opposite say it is ‘retro’.
▼绿色瓷砖营造复古质感, green tiles create a “retro” effect

▼室内楼梯, indoor staircase


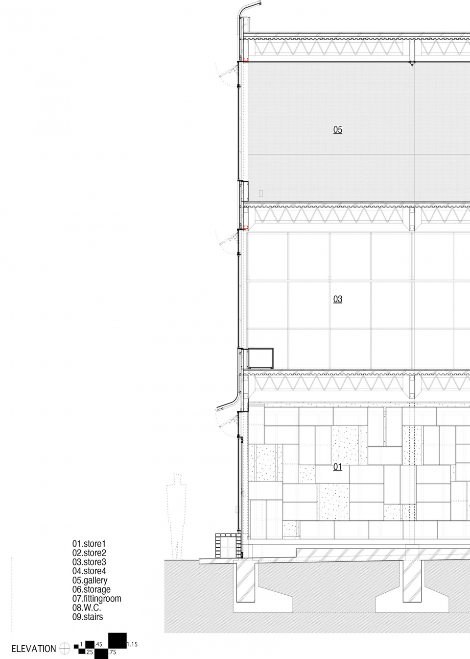
平面
Plane
现有的框架和窗户表面杂乱而粗糙,与优雅的产品和陈设形成强烈的对比,所以划分了陈设品和房间,使卖场楼层远离现有的框架和窗户,为了使人们的目光能够稳定地投向商品和陈设,也划分了周边的区域。由于空间没有明确的划分,光线与热量变化被柔和地传递,让人感觉到空间的连续性。因此,粗糙的现有结构和开口被视为隐蔽的装饰墙,被较少装饰性的陈设和墙壁所掩盖。虽然实际可见面积很小,但在脑海中,普通材料和粗糙的材料似乎互补而对立,如同对照法一般定义着彼此的特殊纹理。
The existing frame and sashes, which have a cluttered and rough finish, contrast too strongly with the elegant products and fixtures, so the fixtures and rooms were arranged so that the sales floor is distant from the existing frame and sashes, not directly facing them, and the perimeter zone is divided, so that the eye is directed steadily towards the products and fixtures. As the space is not clearly divided, changes in light and heat are softly transmitted and a sense of spatial continuity is felt. Therefore, the crude existing structure/openings are perceived as decorative walls that are hidden and glimpsed by the less decorative fixtures and walls. Although the actual visible area is small, the common and crude materials appear to be complementary and antagonistic in the mind, defining each other as characteristic textures, as in the contrast method.
▼一层室内概览, overview of first floor interior

▼一层的商品陈列柜,products display fixtures on 1F


特征
Character
这家老店铺里有许多店主的艺术品和古董,它们和商品一样,是这家店的象征。为了保持各个商店的连续性而布置了它们。在翻新前的商店中,它们的存在被视为在有限的色调和样式定义下的个性,但在这次改造中,通过将它们与既不太近也不太远的特征混合在一起,在色调和风格上更显和谐大方,同时又会有因整合而出现的小小冲突感。简朴的新陈设和古董陈设、商品和建筑框架的混杂,重新定义了每个对象的特征,让每一个物件都充满新鲜感。
The old shop contained numerous art and antique fixtures owned by the owners, which, along with the merchandise, were symbols of the shop. They were placed to maintain continuity from their respective shops. In the previous shops, their presence was treated as individuality within a limited norm of colour tones and styles, but in this renovation, by mixing them with characters that are neither too close nor too far away, there is a little more generosity in the harmony of colour tones and styles, and a small struggle for integration that always occurs. The mix of new, simple, frugal fixtures and antique fixtures, products and frames redefined the character of each, giving each object a fresh impression.
▼店铺的混杂特征,mix character of the stores

▼柔软但工业风的外观,a soft and industrial appearance

▼一层的二号店铺,store 2 on the first floor


在一楼,我们设计了一个比较柔软但是工业风的外观,基于简单的椴木胶合板箱建造,以及玻璃和铜的硬质迷人外观。在二楼我们添加了柔软和优雅的软木板抽象形态,和早期现代主义楣板墙表面。二楼集合了各种现代主义的不同色调,包括从一楼延伸的立体格子扶手,羊毛地毯,钢制陈列柜和利用楼梯的对角线划分和连接空间的镜子等。
We added a relatively soft but industrial appearance based on a simple linden plywood box construction on the first floor, and a hard and glamorous appearance in glass and brass, while on the second floor we added soft and elegant corkboard abstract forms and early modernist-like eye board wall surfaces. The second floor is a collection of various modernisms in different tones, including a three-dimensional lattice railing rising from the first floor, wool carpets, steel showcases and mirrors that divide and connect the space using the diagonal lines of the staircase.
▼二层集合了现代主义的不同品味,The second floor is a collection of various modernisms in different tones


▼二层楼梯间,2F stairwell


▼二层概览,2F overview


▼衣架细部,hanger detail

▼从3号店铺望向4号店铺,view from store 3 towards store 4

▼二层的4号店铺概览,overview of store 4 on 2F

▼天花板细节,detail of the ceiling

只有在布置了各种产品和陈设后,这个空间才能被建立和整合为一个复杂的即兴的商店。
The space became a complex and improvised shop that could only be established and integrated by displaying a variety of products and fixtures.
▼三层空间概览,3F space overview


▼空间细节,space details


▼轴测图,axonometric

▼平面图,plan

▼立面图,elevation

▼剖面图,section

material:corrugated slate, plywood, concrete, bricks, sisal, paint, wallpaper/paint, steel, carpet,
area:232.05m2
location:Osaka , JAPAN
design:micelle ltd. / katada tomoki
construction:MITAKA Corporation , bowlpond _metalworks
date:2022.07.-2023.04.
标签:
声明:
本文由发布人:【137****7830】进行上传及发布,原文章/作品著作权归原作者所有,仅供个人学习交流使用,不构成商业目的;如需商业用途,请联系原作者授权后使用,如涉嫌侵权被追究法律责任与欧模网无关!
本站网友评论及内容发布仅供其表达个人看法,并不表明欧模网的立场或观点。

137****7830
文章:512 问答:0