- 找3d模型上欧模网
案例 2022年12月19日
该项目的目标是通过生物气候学的策略实现零消耗的独栋住宅和健康的室内环境。
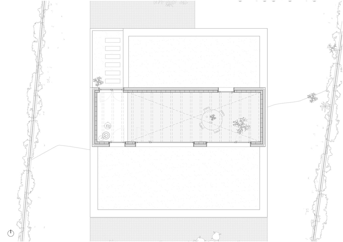
该住宅基于90平方米的紧凑项目,因此,为了优化有限表面积的气候性能,我们决定选择紧凑的方形平面图,其优点是避免建筑外立面的热损失,但缺点是不允许阳光直射到后方房间的南方。
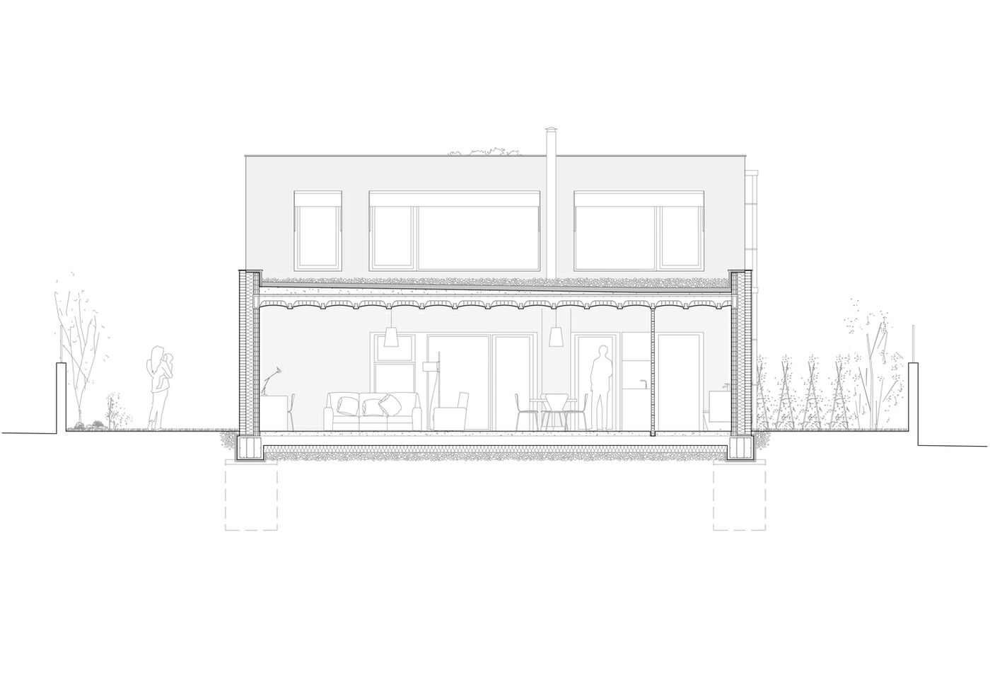
出于这个原因,一个捕捉光和热的中心空间被设计成一个有盖的中庭,在屋顶上方的上部向南开放。因此,被动式住宅的房间围绕着一个生物气候中庭进行组织,这是一个双层高的中央空间,由于向南的上部开口而积累热量,并允许调节北部区域的房间,产生交叉通风。
通过这种方式,中庭产生了第二个建筑外立面的太阳能收益,并储存了我们将用于房屋通风的热空气。
因此,我们实现了一个具有分层空气(热空气上升)的中央空间,在其上部也是一个太阳能收集器,并具有多用途的功能,可以用作额外的客厅、餐厅或简单地作为夜间区域的自由访问空间。
此外,客户明确要求拥有向北的景观,为此,中庭有一个带有图书馆式楼梯的小夹层,可以沿着中庭移动,也可以在不必要的时候隐藏起来。
建筑系统是基于内部石材和外部砖砌的双层墙,它们之间是绝缘的。在入口区域,裸露的砖墙形成了一个半开放的格子,使房屋的入口脱颖而出。开口的太阳保护是由外部纺织百叶窗提供的。
为了在寒冷的冬天产生热水和供暖,我们使用了一个生物质锅炉,为传统的散热器系统提供颗粒。
这座房子的空气更新是通过中庭的通风装置进行的,通风装置从走廊的最高点引入空气,通风装置位于浴室和厨房的潮湿区域。





































SunflowerSun
文章:4 问答:29