- 找3d模型上欧模网
案例 2022年12月09日
每一个全案,都是私人订制
项目地址 / 浙江 · 杭州


Location / Zhejiang · Hangzhou
项目类别 / 基础施工
Project Types / Foundation construction
毕业时间 / 2022 . 10
Finish Time / October. 2022
设计团队 / 力设计
Design Team / Li Design
摄影 / 林峰
Photographer / Lin Feng
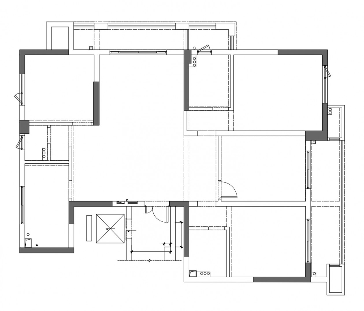
户型图 | Plan
Customized for each project.


本案位于杭州新瑞名府,基于原始结构的户型改造分布在各个角落,
使这个150㎡的平层空间呈现出极强的功能收纳与最适宜的居家形态。
偏爱法式,色彩浓郁的中古混搭是本案的特点。
交融的法式浪漫与美式复古,欢迎来到新兴摩登之家~
客餐厅 | Living Room

仿佛置身摩登时代的画片
初见即惊讶于它的时髦与精致,一切都是那么恰到好处:
介于法式的慵懒随性与精心装点之间,永恒的黑白旋律放大了浓郁色彩所带来的热烈情绪。
浮雕、藤编,经典法式斗柜的木纹肌理与宝格丽的优雅贵气,
多重材质的堆叠,摩登与中古的碰撞,让混搭成一种新的风尚。




▼ 从餐厅看客厅

#户型改造
精致优雅的居家氛围与实用功能性在这里完成统一。
本案的户型改造隐于各个角落:墙体做柜体,柜体呈饰面,一致的设计语言贯穿了整个空间。
伴随厨房空间的扩容,一个经典的法式拱形餐边柜应韵而生;原本封闭的阳台敞开,让光影肆意流转,浪漫至死不渝。

① 封闭阳台打通作客厅休闲区
② 厨房扩容延伸,新砌墙体分作外部洗手盆与餐边柜
③ 厨房扩张,满足存放三个冰箱的功能性需求
▼ 餐厅



▼ 从餐厅看厨房


▼ 走廊 - 连接客餐厅与卧室空间


光滑的黄铜饰面带来戏剧般梦幻的视觉感受
犹如现代艺术的画框,将背景精致的线条与浮雕、一件件散发着中古世纪迷人魅力的家具框入画中。
穿过走廊,光影变幻,气氛逐渐幽深暧昧,勾起继续探索的欲望。
主卧 | Bedroom

怦然心动的法式复古卧室
持续一周的阴天,只想窝在房间,泡一杯咖啡保持温暖。
柔暖的被面色彩跟乳胶漆颜色呼应,温暖又治愈。
简简单单的快乐也很美好~
*来自美女业主:陶小桃

#户型改造
浓郁温柔的深色背景仿佛一杯冬日的热巧克力,释放着甜蜜与好睡的信号。
根据业主的实际需求,我们打破原本普通的卧室布局:
打通南面阳台,南移儿童房空间,让主卧作为私密空间的同时拥有大容量衣帽间与宽敞的独立卫生间。
① 打通南面阳台,南移儿童房空间
② 延伸主卧空间,原本走廊位置变作5米大容量衣帽间
③ 主卫扩张,自带浴缸,干湿分离
▼ 主卫

美式复古风卫生间充满摩登色彩
经典黑白菱格做底色,活泼的暗橘色背景肌理、复古黄铜质感与暖色系灯光让卫浴空间不再单调。
以复古摩登为设计灵感,打造一个属于时髦女郎的电影感私人空间。

▼ 主卫 - 细部




次卧 | Secondary Bedroom
▼ 男孩房




慵懒随性,法式是一种生活态度

法式新家一步一景
浓郁的复古色彩、精心的中古搭配
还有小姐姐亲自布置的插花

每一个转身都好看,都好拍

主卧一隅

恭喜新家毕业、入住!
*图源美女业主:陶小桃



Upton Ellen
文章:4 问答:2