{{ COMMON.userInfo.value.model_list_count }}
欧模网 > 欧模社区 > 案例资料 > 案例 > 家居别墅 > 别墅 > Babii Daria新作:450㎡别墅设计,漂亮!
案例 2022年11月22日
别墅设计
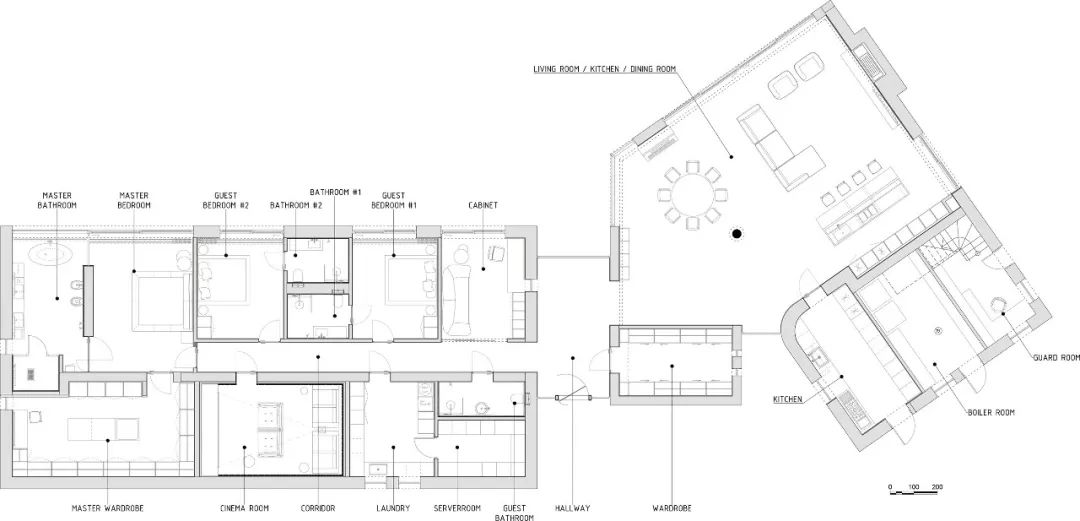
Babii Daria新作,450㎡庄园别墅,庄园设计师以现代简约为定位,简洁流畅,融入了自然的元素,大理石的硬朗与木饰面的柔软细腻相结合,丰富的纹理营造了空间的质感,塑造了惬意与舒适的居住空间。
标签:
现代简约 别墅设计
声明:本文由发布人:【T8fhDz】进行上传及发布,原文章/作品著作权归原作者所有,仅供个人学习交流使用,不构成商业目的;如需商业用途,请联系原作者授权后使用,如涉嫌侵权被追究法律责任与欧模网无关!本站网友评论及内容发布仅供其表达个人看法,并不表明欧模网的立场或观点。
T8fhDz
文章:3 问答:0
不花钱,教你学会VR与CR材质互转!
3dmax打开弹出“应用程序错误”对话框解决办法(2018年版)
CR渲染器会取代VRay吗?答案是……
162㎡现代简约成都美年中心D户型--李玮珉 & 中熙设计