- 找3d模型上欧模网
案例 2022年11月18日
这家餐厅位于墨西哥瓜达拉哈拉市附近的哈利斯科州Zapopan的一个购物和金融区。该项目的目标是实现一个有着近30年历史和手工产品和工艺的根植文化的商业的美学和建筑身份。在过去的26年里,La Tequila为自己赢得了墨西哥美食首选目的地的声誉,因此,它建立了一种强烈的认同感,我们的任务是保护它。





该项目旨在通过采用原始的纹理和组件,并以新颖的方式应用它们,创建一种新的但熟悉的语言,来重振这种身份。这类似于餐厅的烹饪,它采用了传统的墨西哥食谱,并将其转换到现代环境中。

材料来源是主要的问题,当地生产的材料和手工艺品将重申这个概念所代表的意义。

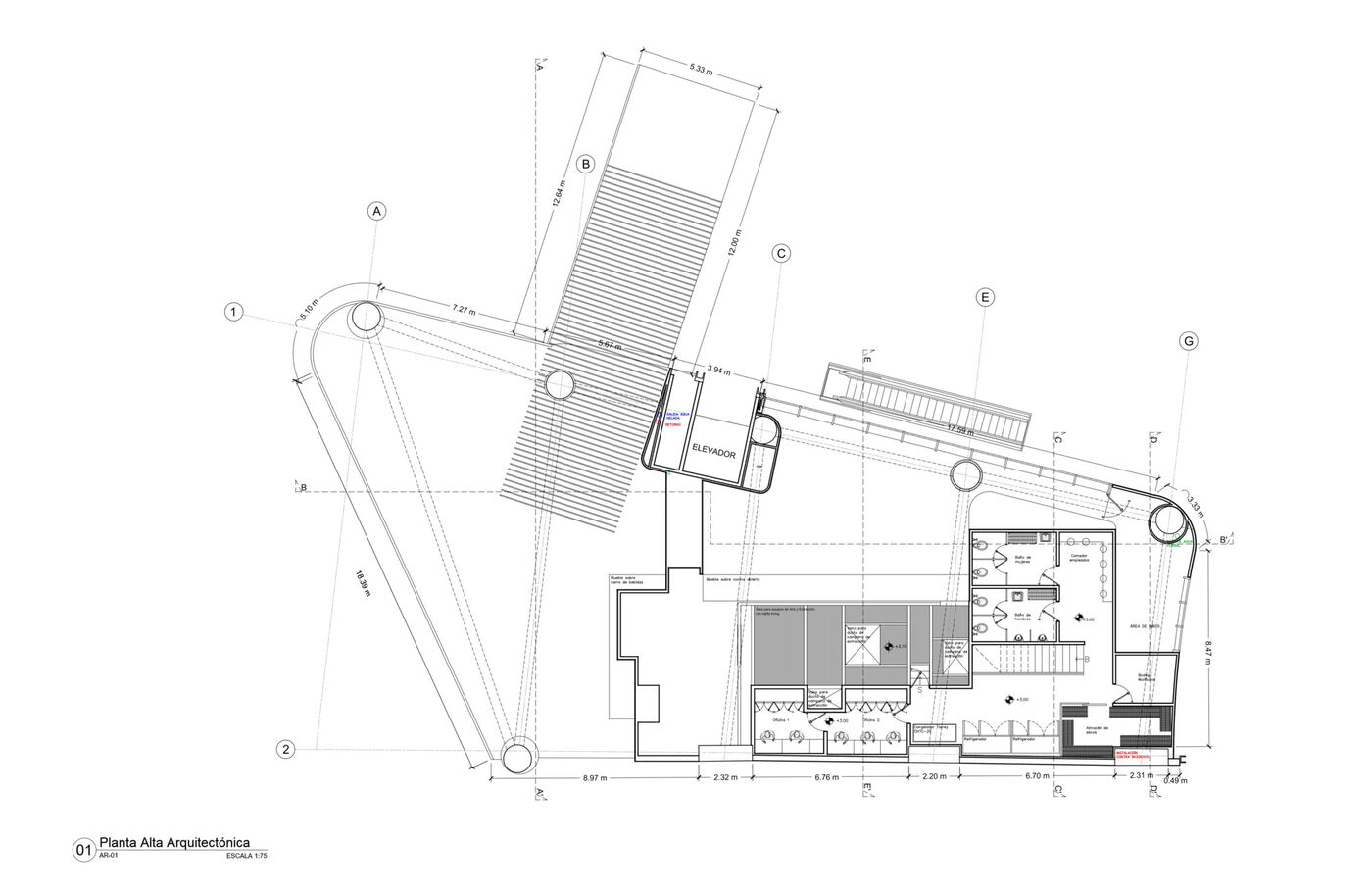
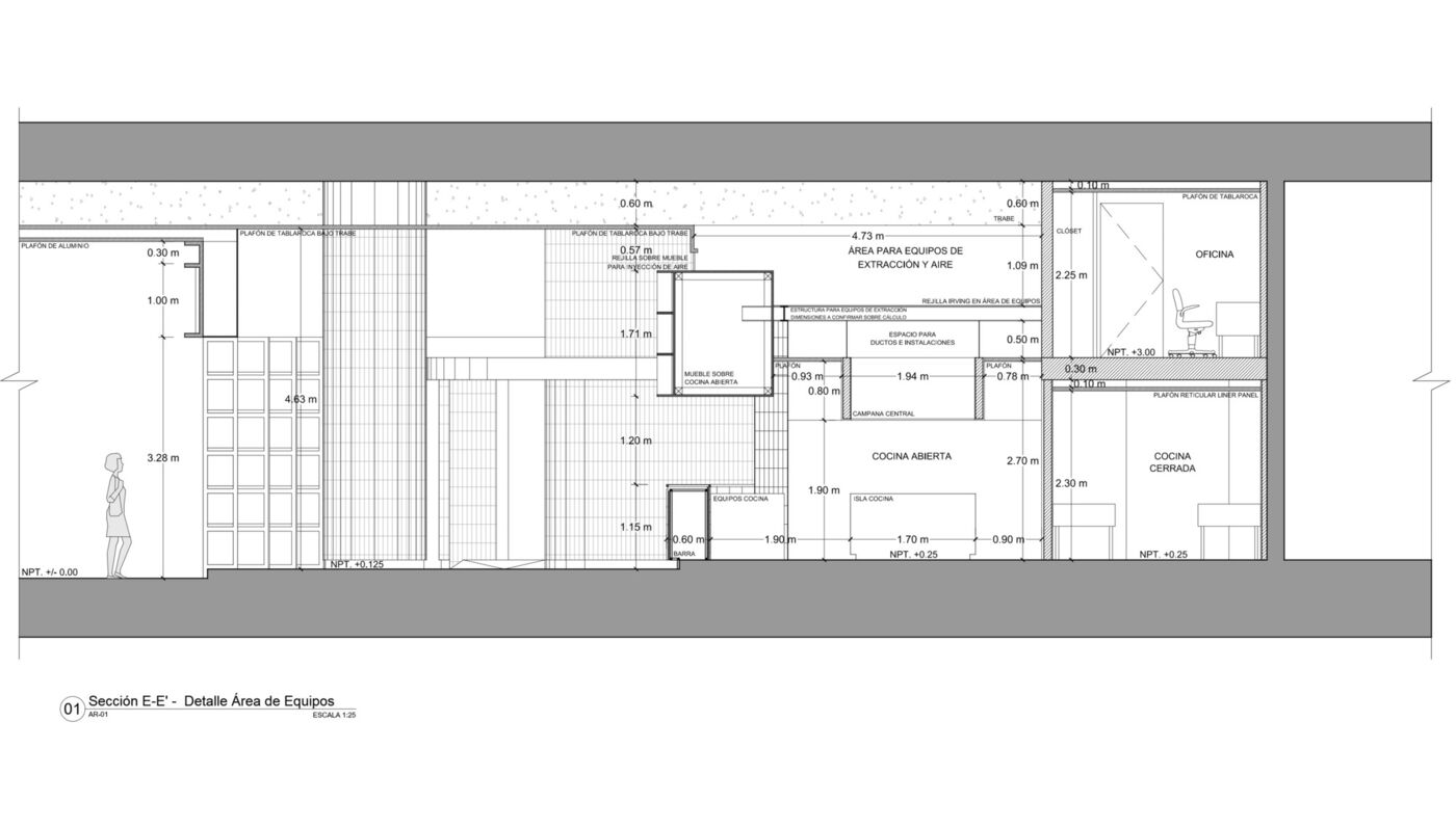
这个程序相当简单。后面的区域,包括厨房、产品接待处、员工浴室和办公室,分布在两层,约占总容积的40%。同时,房子的前面占据了餐厅剩余的60%,被划分为3个不同的区域:一个内部大厅,非常适合家庭聚会,它面对厨房的开放p,靠近浴室和儿童俱乐部;酒吧正前方有一个大型的半户外区域,可以容纳不同的座位配置,可以欣赏到邻近商业区的美景;还有一个相邻的露台,可以用一系列的纺织窗帘围起来,作为私人用餐区。








k9ZoBU
文章:4 问答:0