- 找3d模型上欧模网
案例 2022年09月03日
新的工作方式将继续存在,需要不同的方法来开发它们的空间。该项目通过结合不同类型的空间和隐私级别,在用户和工作空间之间产生新的互动。该项目是 elastiko 于 2018 年与 Cloudworks 合作的第一个项目,旨在为该品牌的所有联合办公空间定义一种共同的个人审美。
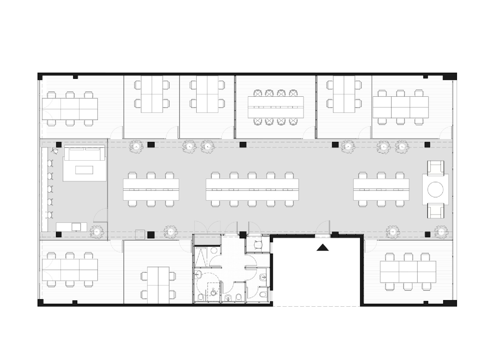
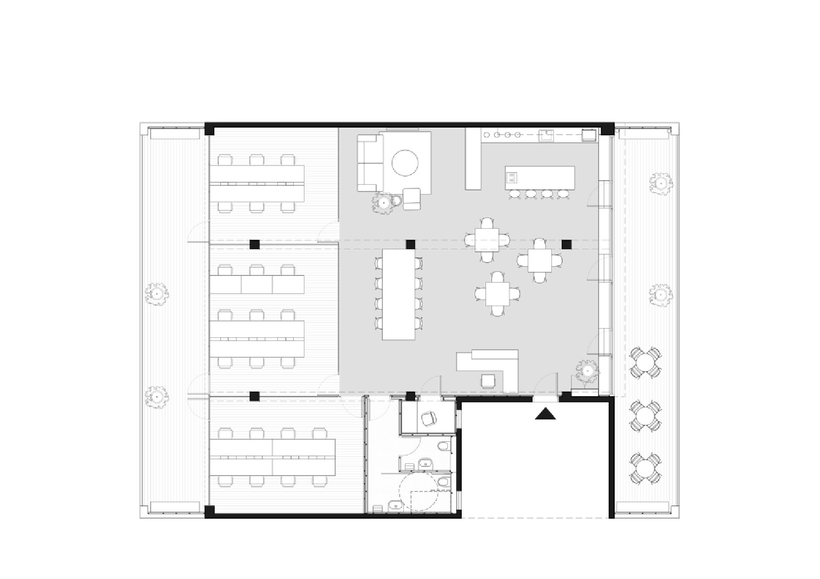
Cloudworks Sant Joan 占据了巴塞罗那 Eixample 区一栋办公楼的两层楼。7 楼围绕一个中央开放式办公空间进行组织,而 10 楼则为团队提供共享空间的办公室。
对于这座 70 年代的前办公楼,第一个决定是拆除混凝土结构,露出门廊,这在项目中占有重要地位。
假天花板墙被拆除,所有装置都可见,砖隔墙也被清理干净。与此同时,中央核心用桦木镶板,形成一个与红砖隔墙形成鲜明对比的大盒子。与高度划分的传统办公室相比,投射出能够实现视觉连接的开放空间。不同类型的工作空间和聚会点的产生旨在促进同事社区,在各个创意领域的学科和人才之间架起桥梁。因此,在重点工作空间、正式会议区以及非正式和协作区之间实现了平衡。
选用了木材、陶瓷、抛光水泥和深色金属型材等高贵材料,将它们组合在一起,创造出现代空间,具有强烈的个性,同时又温暖并注重细节。工作台由 elastiko 设计。
Client Cloud Workplaces SL Location Carrer d'Aragó 386. Barcelona
建筑承包商 Indecosa
面积 640 平方米
摄影 Leonardo García
状态已完成 [01/10/ 2018]


















风英博
文章:3 问答:14