- 找3d模型上欧模网
案例 2022年02月23日



荟舍&左右乾坤家居品牌体验馆
HUISHE & QIANKUN BRAND STORE
All-round Design for Brand Furniture Experience Store.Huishe (willing): closingsensory channels to restart spiritual experience.
HUIZHOU,CHINA 2021
SERVICE BACKGROUD I 项目服务背景
SERVICE 服务Ideal Life Design & Realization理想生活全案设计与实现:Interior Design + Art Décor室内建筑设计+软装艺术设计 AREA 领域Brand Experience Store家居品牌体验店 CLIENT 客户Huishe All-round Design Furniture Store荟舍全案设计家居馆
DEMANDS I 理想生活诉求
近年,随着各行各业对品牌与价值链的认知不断提升,越来越多的企业进入价值觉醒期。如何从经营销售“商铺”的产品与服务价值上升至经营沉淀“品牌”的体验价值?以及如何向产业行业价值链前端靠近与进阶,成为了处在家居行业的中末端价值链上企业所困扰的焦点问题。作为帮助顾客臻选高品质家居产品品牌、为顾客提供全案设计家居定制服务的渠道品牌,荟舍全案设计家居馆创始人向LICO力高设计发出设计邀约,委托LICO为荟舍重构全新的产品服务体验,传导荟舍全新品牌感知,以重塑荟舍全新品牌体验场域精神。
SOLUTION I 解决方案 LICO认为,品牌体验空间的设计创作核心在于对品牌精神、理念深入浅出地理解解读与表达演绎。故,如何新建顾客体验第一印象界面,进而引导并重构顾客与产品、服务的体验方式,以至无需借由其他复杂冗余介质来重塑顾客对品牌的体验感受,直至传导、再塑和升华品牌精神意涵,成为本案设计思考的原点与终点。
LICO设计团队给出的答案是:会舍。
STRATEGY I 设计策略
50%DESIGN:关闭感官通道以重启精神体验
据市场数据分析反馈得知,荟舍近八成的顾客更青睐选择左右乾坤品牌,它构成并代表着荟舍家居品牌体验馆的品牌核心意涵:用现代设计语言诠释经典,不拘谨于新中式,以现代极简主义风格与中国传统造型美学巧妙融合,将两者优点相结合的创新艺术形式,去符号、去风格,注重情怀和人文表现,同时兼具新时代全新气质。
基于LICO 50%DESIGN设计创作理念与“功能美学“审美语境体系,结合荟舍品牌精神意涵,我们确立了“去介质、去符号、去风格,关闭感官通道以重启精神体验“作为本案的设计创作策略,以达荟舍营造“宁静、气定、神怡”之“会舍”品牌人文精神体验场域。
宁静 I 欲退而静
欲退而有余地,有余地则有空间。整体立面的退敛、标识发光效果的褪却、置一椅以隐示空间属性的克制,并非技巧与风格取向的忖度,而皆源自设计师对荟舍品牌精神之理解、体悟与凝塑:欲退而不争,不争而心宁,心宁则静。欲退而静。
气定 I 禀气而生
人禀天地之气而生。敬天惜时,禀受自然之苔、石、竹、朽木,以喻乾坤、晴雨、寒暑、朝昏、昼夜生活之自然智慧,回复灵性以全生,物之空间尺度让渡于人之运动尺度,至其间漫步随行,气定神闲。禀气而生。
神怡 I 心释而空
人之舍,心则释,释则空。空即之间,以观心,安适舍然。空是光之步履,光刻画空之轮廓、延续空之生命,升华空之精神。光,是生活的理想;是宁静而灵动、自然而神圣的诗歌。心释而空。
会舍,是放下,是爱人,是欲望的退敛,灵性的回复,心安舍然。LICO相信,会舍即是空,空即是光之来处,光即是神之降临,生活如是。
CUSTOMER REVIEWSI 客户评价 在访谈荟舍品牌创始人罗先生时,谈及为何选择LICO团队,罗先生直言,在当下这个竞争激烈的市场环境中,我们必须比其他任何时候都要重视“客户体验”,基于荟舍服务的高标准客户群体,我认为:要提升客户体验标准,荟舍就要选择品质和创新要求标准高的设计品牌。问及项目落地完成后的评价,罗先生说:我们收获了预约到访的顾客高度一致的好评,项目落地完成至今,成交率达100%,如果要打分的话,我打101分,因為結果超出了我的預期。LICO为荟舍打造的全新品牌体验空间,让我感触最深的就是:空间氛围留得住人,不只是到访顾客愿意多待在这里,连我都比从前更愿意待在这里,甚至都不想回家(罗先生笑言)。欢迎大家预约到访荟舍-左右乾坤家居品牌体验馆现场体验。
IDEAL LIFE I 理想生活全案实景





































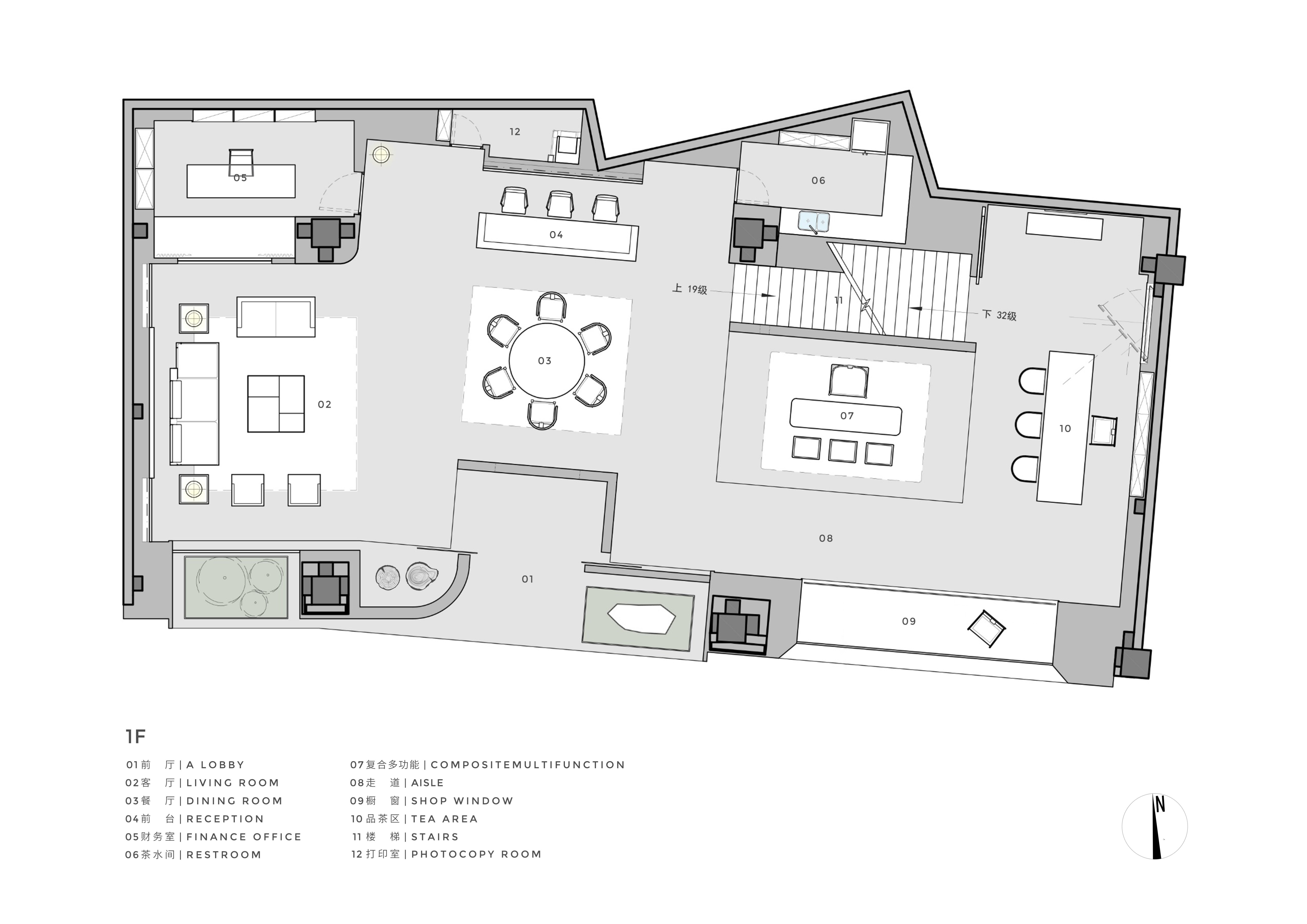
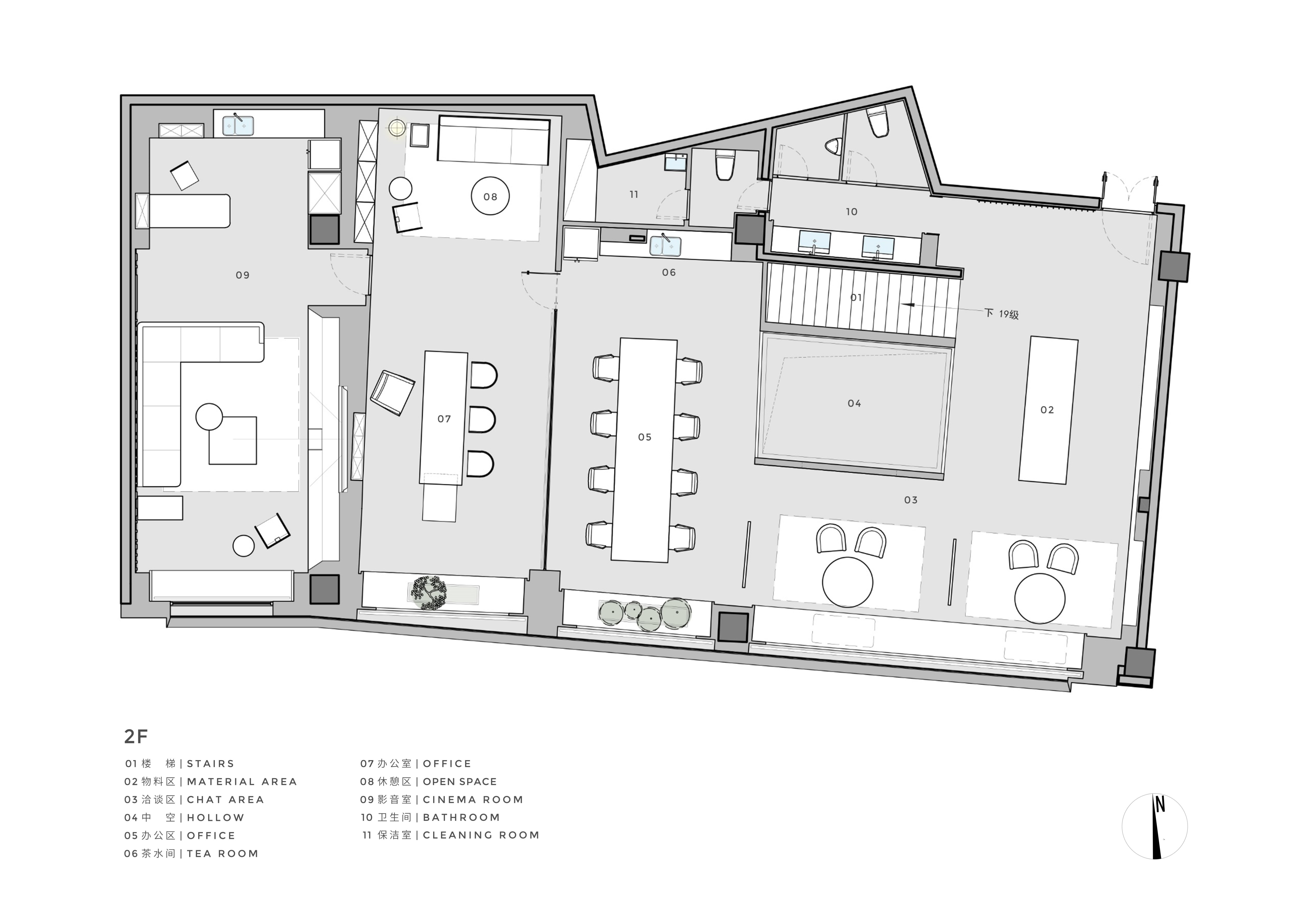
FLOOR PLAN I 平面功能规划


SPACE RENDERINGS I 空间效果图




PROJECT INFORMATION I 项目信息
项目名称 I 荟舍-左右乾坤家居品牌体验馆
设计出品 I LICO力高设计
完成年份 I 2021.11
主创设计 I 钟良胜
设计团队 I 曾颖琳、朱洋环、林峰、董华斌、骆秋月、张春燕
项目地址 I 惠州市惠城区惠沙堤二路
建筑面积 I 600平方米
摄影版权 I 隐象建筑摄影|欧阳云
视频制作 I 千山影像|黄维
客户名称 I 荟舍家居馆
品 牌 I 乾坤家居

LICO力高设计
文章:3 问答:0