- 找3d模型上欧模网
案例 2021年06月09日
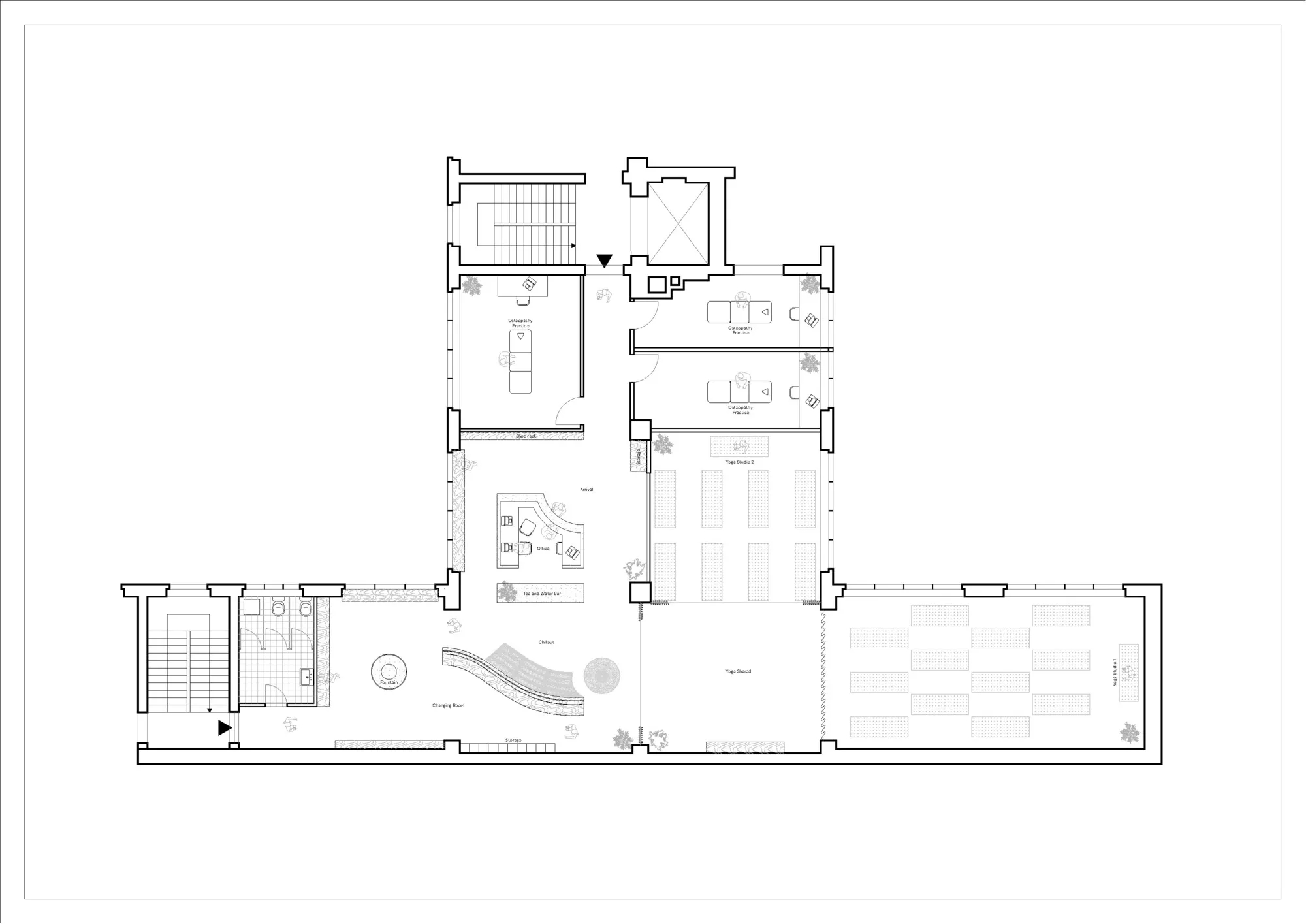
这家精品瑜伽工作室的设计基于流动的概念——瑜伽练习中使用的一个术语,用来描述流动的运动和冥想的感觉。在空间内,这些想法通过空间之间的平滑过渡以及织物和大麻混凝土等可延展材料的广泛使用来体现。入口通向一个大型接待区,中央办公桌兼作偶尔的酒吧。可重新配置的沙发遵循作为空间分隔物的大屏幕的柔和曲线。一侧有一个大型喷泉提醒游客洗手,而另一侧则通向练习室。






















标签:
声明:
本文由发布人:【狂铁】进行上传及发布,原文章/作品著作权归原作者所有,仅供个人学习交流使用,不构成商业目的;如需商业用途,请联系原作者授权后使用,如涉嫌侵权被追究法律责任与欧模网无关!
本站网友评论及内容发布仅供其表达个人看法,并不表明欧模网的立场或观点。
狂铁
文章:5 问答:2