- 找3d模型上欧模网
案例 2021年04月26日



Ark-shelter事务所受邀为Bjornson酒店设计一组森林度假屋。投资方明确提出朝向一侧的成对小屋围绕酒店主体布置的想法,这使设计方案变得相对简单。



小屋位于森林中,面向不同的森林或滑雪坡道原始景色。与滑雪坡道相邻造就了度假村的独特氛围。





设计师认为在树林中安置模块的理念是生态的,这不仅保护了树木,还通过将模块置于支柱而不是典型混凝土板基础上,使其与地面的接触达到最小。这样一来,景观就可以在建筑下方不断地流动与呼吸。



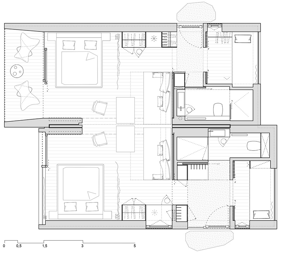
度假屋基于业主对建筑外观的想法进行设计,整个项目都需满足单一朝向和单一视野。所有建筑/小屋由两个独立模块组成,每个模块配有独立的房间,包括卧室兼客厅、儿童房、门厅和浴室。




两个独立功能单元可以通过滑动客厅的隔墙连成一体,形成两家人见面和社交的宽敞中心空间。两套公寓的功能是镜像的,偏移的模块形成微小的空间变化,例如更大的浴室或额外的阳台,丰富了度假屋的多样性。


模块的布局使旅客同时身处森林和Jasná滑雪胜地,还确保了它在酒店主体附近的隐私与宁静。设计师还设计了酒店餐厅扩建部分以及由四个模块组成的森林健康设施,即一系列桑拿室和具有按摩服务的休闲室。
夜景






▼度假屋轴测图

▼度假屋平面图

▼度假屋剖面图

▼spa平面图

设计:Ark-shelter
标签:
声明:
本文由发布人:【Mignon Albert】进行上传及发布,原文章/作品著作权归原作者所有,仅供个人学习交流使用,不构成商业目的;如需商业用途,请联系原作者授权后使用,如涉嫌侵权被追究法律责任与欧模网无关!
本站网友评论及内容发布仅供其表达个人看法,并不表明欧模网的立场或观点。
Mignon Albert
文章:2 问答:26