- 找3d模型上欧模网
案例 2021年02月07日


设计不是一种技能,而是捕捉事物本质的感觉能力与洞察能力。与自然相处的方式就是等待,等待着,等待着,不知不觉间,我们就感受到了自然的丰饶。
Design is not a skill, but the ability of feeling and insight to capture the essence of things. The way to get along with nature is to wait, wait, wait. Unconsciously, we feel the richness of nature.
——原研哉
住宅是居居住的机器。”“建筑被传统的桎梏束缚着。风格只是一种谎言
Housing is a living machine. " "Architecture is bound by the shackles of tradition. Style is just a lie.



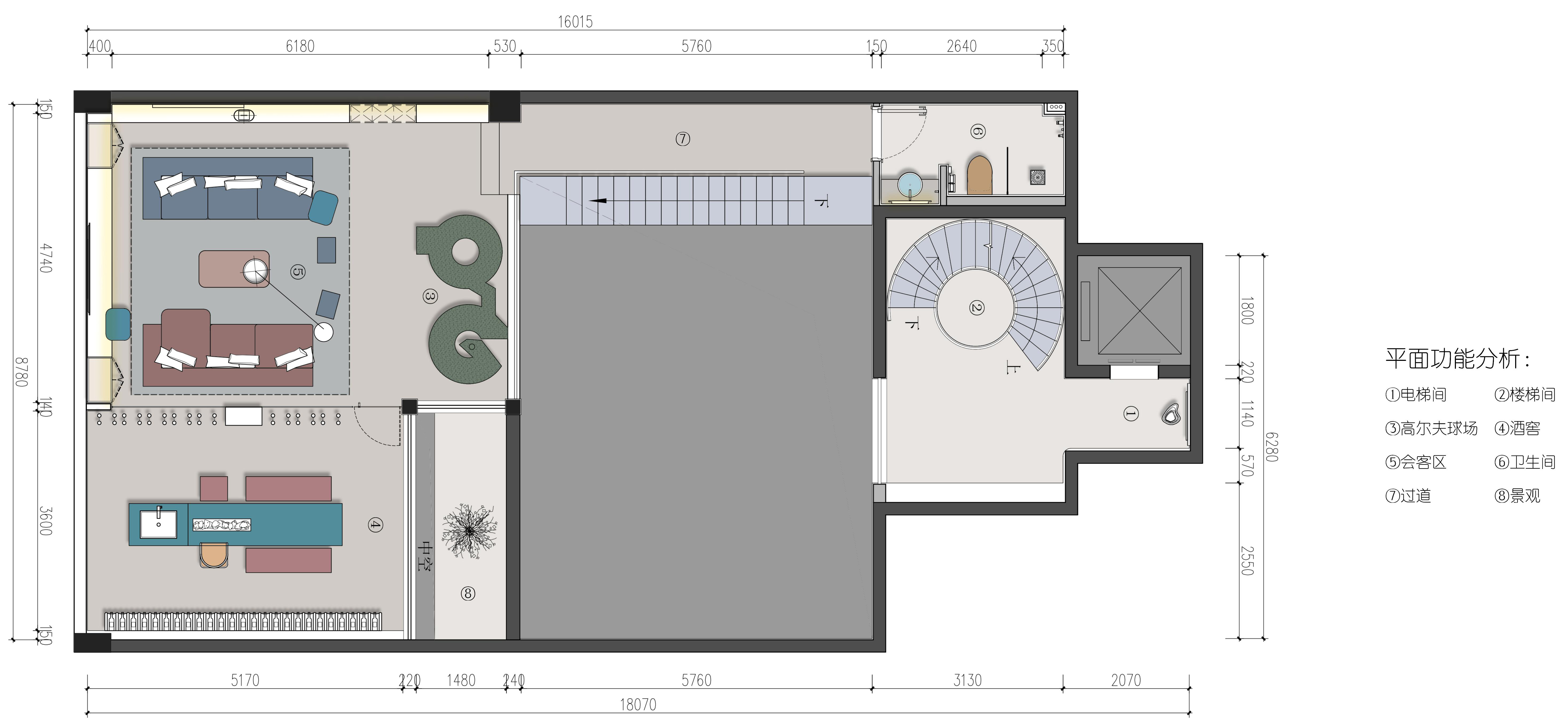
负二层


负一层
设计应该有服务大众的情怀,回归生活本真的探索是任何时候都应该强调的面向,“我们通过调研目标客群的本质需求,深度理解他们的个性特征、兴趣爱好、审美趋向、生活习惯等,为他们提供适合的设计方案,真正做到设计与日常生活相关联,以细节承载品质感,让空间与居者一同生长。
Design should have the feelings of serving the public, and the exploration of returning to the essence of life should be emphasized at any time. "Through investigating the essential needs of the target customers, we deeply understand their personality characteristics, interests, aesthetic trends, living habits, etc., and provide them with suitable design schemes, so as to truly Associate Design with daily life and carry quality with details Feeling, let the space grow with the residents.





一层
设计师大胆的头脑风暴,突出的挑战结构,突破性的交互关系,创造出于岩洞般的一丝感觉,人与自然紧密的关系。空间对世界的情感,常以结合自然的设计去体现,而空间对家庭的情感,则更多地通过人性化、情境化的设计去体现。还原真实情境的样板间,是设计师自身在完成对生活细致入微的体察后,再运用空间语言和功能为大众输出一种生活方式。
The designer's bold brainstorming, outstanding challenge structure, and breakthrough interaction create a feeling like a cave, and the close relationship between man and nature. The emotion of space to the world is often reflected by the design combining with nature, while the emotion of space to family is more reflected by the humanized and situational design. The model room to restore the real situation is a way of life for the public by using space language and function after the designer's careful observation of life.













二层
设计师将对光影艺术、空间美学、感官逻辑等思考融入到空间中,通过当代艺术格调的打造空间的气质,使人们对 空间产生依赖与好奇,灯光所赋予空间与人的多种可能。质朴、静谧、当代、艺术是希望表达的气质,通过极致的细节提升整体艺术效果,让人回归安静的氛围。环境决定行为,在场的建筑精神,寻找纯粹的表达,将灵魂留给大地。
Designers integrate the thinking of light and shadow art, space aesthetics and sensory logic into the space, create the temperament of space through the contemporary art style, make people rely on and curious about the space, and give space and people a variety of possibilities by lighting. Simple, quiet, contemporary and artistic are the qualities that we hope to express. Through the extreme details, we can improve the overall artistic effect and let people return to the quiet atmosphere. The environment determines the behavior, the architectural spirit of the presence, looking for pure expression, leaving the soul to the earth.
/ 平 面 分 析 /




项目名称 :天津华远棠悦别墅样板间
项目性质 :住宅
项目地址: 津市滨海新区汉沽街道新开中路77号弘钰大厦
项目业主:华远棠悦地产
空间设计:段广龙
软装设计:段广龙
设计时间:2020.10.18
主要材料:白色微水泥、水磨石、透光水泥、爵士白大理石、石晶木地板、墙布、艺术水纹肌理漆、GRG装饰墙板、马赛克


段广龙
上海DGL建筑室内设计事务所创始人(设计总监)
2019年6月/国际建筑装饰室内设计协会室内设计师证书
2019年8月/全国职业技能全案设计师证书
设计理念
我希望能够为空间创造出无限的可能性,用创新性思维不限制于某种地方赐予空间灵魂,与生活﹑艺术﹑自然界的因素相结合。
I hope to be able to create unlimited possibilities for the space, give the soul of the space with innovative thinking not limited to a certain place, and combine it with the factors of life, art and nature.
夕阳
文章:1 问答:0